$3,750
For Rent
Base rent only. For total monthly price and additional fees, see .
No longer available 8/9/2023
663 ft²
$67 per ft²
2 rooms
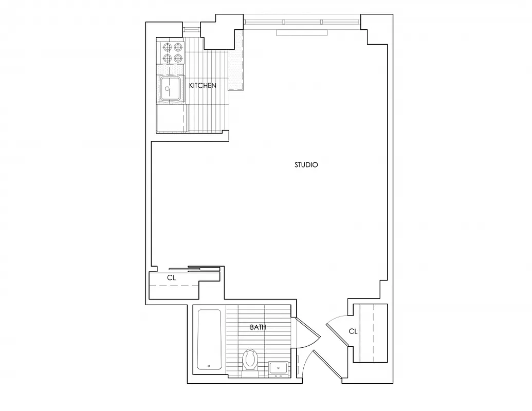
Studio
1 bath
Rental unit
- Sutton Place
Under NYC law, you can't be charged a broker fee if you didn't hire a broker.
Listed By
Stonehenge NYC LLC
This home has been saved by 37 users.
Listing by Stonehenge NYC LLC, Limited Liability Broker | Brokerage Listing ID: 6299954
Unavailable
No longer available on 8/9/2023
Days on market
61 days
Last price change
No changes
About
Lease break through 8/31. New 12 month lease will be offered at $4,095. Oversized high floor studio with built-in bookshelves and working fireplace; features full-sized, renovated kitchen, spacious walk-in closet and fabulous views. Rare find! Stonehenge Access offers agent led, self guided and virtual tours for your convenience. Please visit our website at www.Stonehengenyc.com to book your tour.
Policies
No info on policies
Home features
Fireplace
View
City
Building amenities
Services and facilities
Doorman
Elevator
Laundry in building
Live-in super
Wellness and recreation
Children's playroom
Gym
Shared outdoor space
No info on shared outdoor space
About the building
400 East 57th Street
400 East 57th Street, New York, NY 10022
259 units
19 stories
1931 built
Property history
Prices shown are base rent only. For total monthly price and additional fees, see .
| Date | Base rent | Event |
|---|---|---|
8/9/2023 | $3,750 | No longer available |
6/9/2023 | $3,750 | Listed by Stonehenge NYC LLC |
5/25/2018 | $3,208 | |
5/10/2018 | $3,208 | |
10/14/2016 | $2,889 |
Past listing photos
Sign in to take a closer look at how this home compares to similar homes.
Explore Sutton Place
Transit
| Location | Distance |
|---|---|
EM6at Lexington Av–53rd St | 0.33 miles |
NRW456at Lexington Av/59th St | 0.33 miles |
EM6at 51st St | 0.46 miles |
FQat Lexington Av/63rd St | 0.51 miles |
EMat 5th Av–53rd St | 0.59 miles |
Similar homes
Prices shown are base rent only and don't include any fees. Visit each listing to see a complete cost breakdown.
Similar Homes looks at ad spend and other factors like location, price, and number of beds and baths.



























































































































