2,390 ft²
$1,161 per ft²
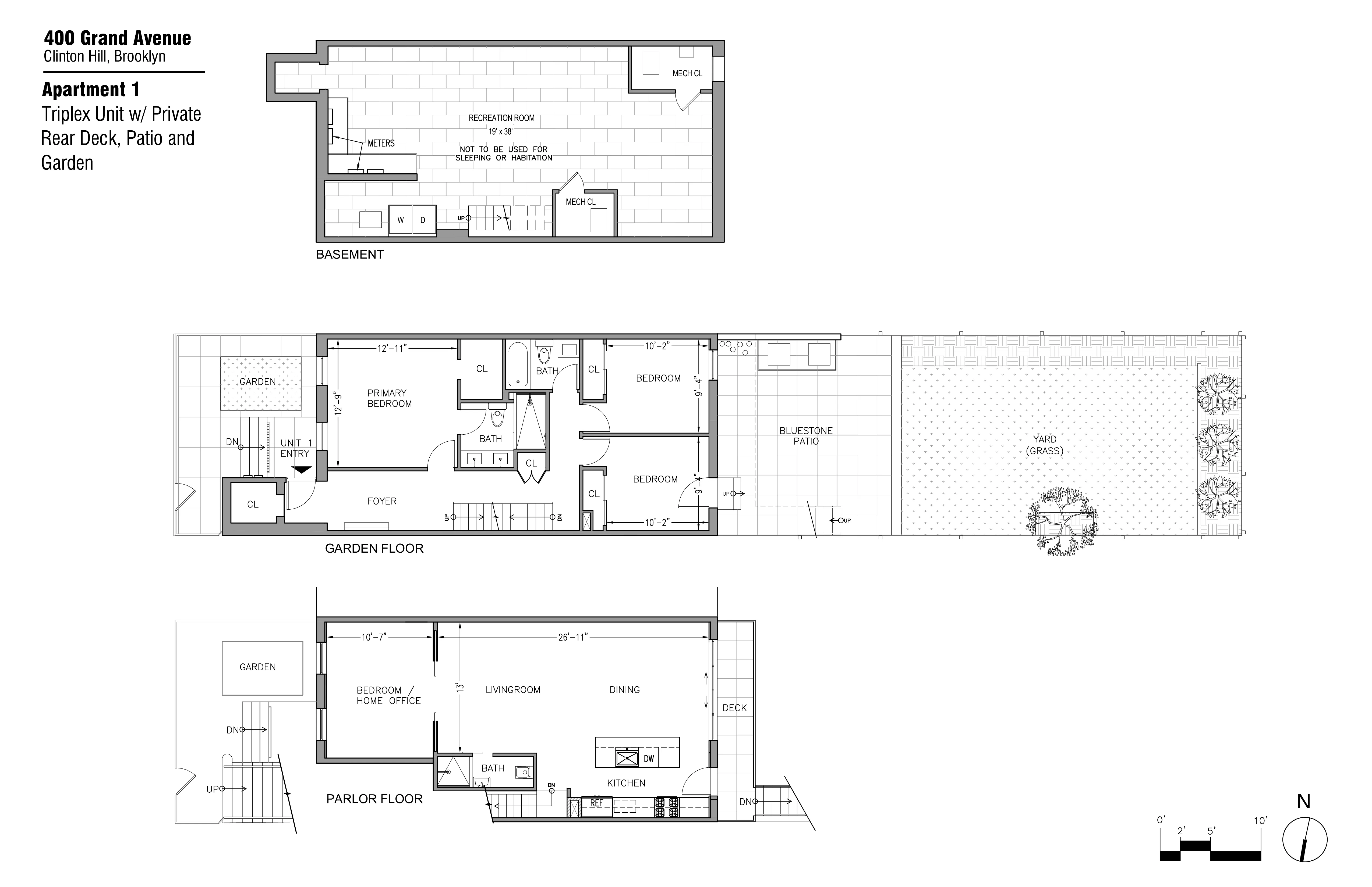
8 rooms
4 beds
3 baths
Two-family home
- Clinton Hill
Resale
recorded sale
Sold on 9/13/2024
Verified by closing records
Last listed for $2,950,000
Listed by
Owner
This home has been saved by 63 users.
Listing by Owner
Common charges
Not applicable
Estimated payment
Taxes
$1,459/mo
Tax abatement
No info
About
Buyer’s agent
description
Historic townhouse charm meets contemporary elegance at this garden home. Situated on a tree-lined block acclaimed by the Landmark Preservation Commission as "one of the visually richest rowhouse vistas in New York City," the brick and brownstone exterior invites you into a spacious, luminous interior. Crafted by Atelier New York Architecture, the layout embodies efficiency and modern luxury.
Policies
Sorry, policy info isn’t available right now. Check back later.
Home features
Central air
Dishwasher
Hardwood floors
Private outdoor space
Balcony, Garden
View
Garden
Washer/dryer
Building amenities
No info on building amenities
About the building
400 Grand Avenue
400 Grand Avenue, Brooklyn, NY 11238
2 units
3 stories
1899 built
For sale
0 available units for saleFor rent
0 available units for rentDocuments and permits
View documents and permitsProperty history
- Price Change: No changes
- Days on market: 58 daysThis is the number of days the listing has been on StreetEasy.
| Date | Price | Event |
|---|---|---|
9/13/2024 | $2,775,093 | Sold by Owner |
6/12/2024 | $2,950,000 | No longer available |
5/14/2024 | $2,950,000 | Listed by Owner |
5/9/2024 | $2,950,000 | No longer available |
4/10/2024 | $2,950,000 | Listed by Owner |
Past listing photos
Sign in to take a closer look at how this home compares to similar homes.
Explore Clinton Hill
Transit
| Location | Distance |
|---|---|
Cat Clinton & Washington Avs | 0.15 miles |
Gat Clinton–Washington Avs | 0.31 miles |
Gat Classon Av | 0.32 miles |
ASat Franklin Av | 0.41 miles |
ACSat Franklin Av | 0.41 miles |






























































































































































































































