$11,500
For Rent
Base rent only. For total monthly price and additional fees, see .
Rented 8/29/2022
- ft²
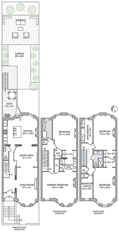
8 rooms
4 beds
2.5 baths
Two-family home
- Prospect Heights
Under NYC law, you can't be charged a broker fee if you didn't hire a broker.
Listed By
This home has been saved by 37 users.
Listing by Compass, Corporate Broker, 514 2nd Street, Brooklyn, NY 11215
Unavailable
Rented on 8/29/2022
Days on market
28 days
Last price change
No changes
About
Quintessential Brooklyn Townhouse Living.
This is the perfect Limestone triplex to rent on a Historic Landmark Block in Prospect Heights with PARKING INCLUDED. Located a stoneâs throw from Vanderbilt Avenue on tree lined Sterling Place, this home has been immaculately restored to bring all the modern amenities to a Brooklyn limestone.
Policies
Sorry, policy info isnât available right now. Check back later.
Home features
Dishwasher
Fireplace
Decorative
Furnished
Hardwood floors
Private outdoor space
Garden, Terrace
View
Garden
Washer/dryer
Building amenities
Services and facilities
Parking
Valet
Wellness and recreation
No info on wellness and recreation
Shared outdoor space
No info on shared outdoor space
About the building
402 Sterling Place
402 Sterling Place, Brooklyn, NY 11238
2 units
3 stories
1910 built
Property history
Prices shown are base rent only. For total monthly price and additional fees, see .
| Date | Base rent | Event |
|---|---|---|
8/29/2022 | $11,500 | Rented by Compass |
8/1/2022 | $11,500 | Listed by Compass |
Past listing photos
Sign in to take a closer look at how this home compares to similar homes.
Explore Prospect Heights
Transit
| Location | Distance |
|---|---|
23at Eastern ParkwayâBrooklyn Museum | 0.18 miles |
23at Grand Army Plaza | 0.31 miles |
Sat Park Place | 0.37 miles |
S2345at Botanic Gardens | 0.42 miles |
BQat 7th Av | 0.42 miles |
About Prospect Heights
Rental prices shown are base rent before any fees. Visit listings for cost and fees breakdown.
SalesMedian asking price
4 beds
$2.8M
RentalsMedian asking base rent
4 beds
$6,372
Prospect Heights offers a vibrant mix of old and new Brooklyn. Often referred to as a fallback for people unable to afford Park Slope, the area has recently become known for its own unique personality - as well as its rising real estate value. The commercial strips of Vanderbilt and Washington Avenues offer a mix of bodegas and inveterate neighborhood standbys next to a new spate of hipster-centric bars and restaurants. Turn down any side street, however, and you can encounter gorgeous old brownstones surrounded by quiet greenery.
Learn more about Prospect HeightsSimilar homes
Prices shown are base rent only and don't include any fees. Visit each listing to see a complete cost breakdown.
Similar Homes looks at ad spend and other factors like location, price, and number of beds and baths.






























































































































































