$2,700
For Rent
Base rent only. For total monthly price and additional fees, see .
No longer available 9/22/2023
- ft²
1 room
1 bed
1 bath
Rental unit
- Hell's Kitchen
Under NYC law, you can't be charged a broker fee if you didn't hire a broker.
Listed By
This home has been saved by 105 users.
Listing by Bond New York, Limited Liability Broker, 810 Seventh Avenue, New York, NY 10019
Unavailable
No longer available on 9/22/2023
Days on market
36 days
Last price change
↑ $110 (+3.9%) on 8/31/23
About
An extraordinary urban experience at 403 W 44th – an inviting 1 bed haven in the Hells Kitchen- Theatre District!
Discover the essence of city living:
*Spacious layout for a comfortable queen-sized bedroom.
*Separate kitchen, lot's of space for cooking at home.
*Entertainment-sized living room, perfect for memorable gatherings.
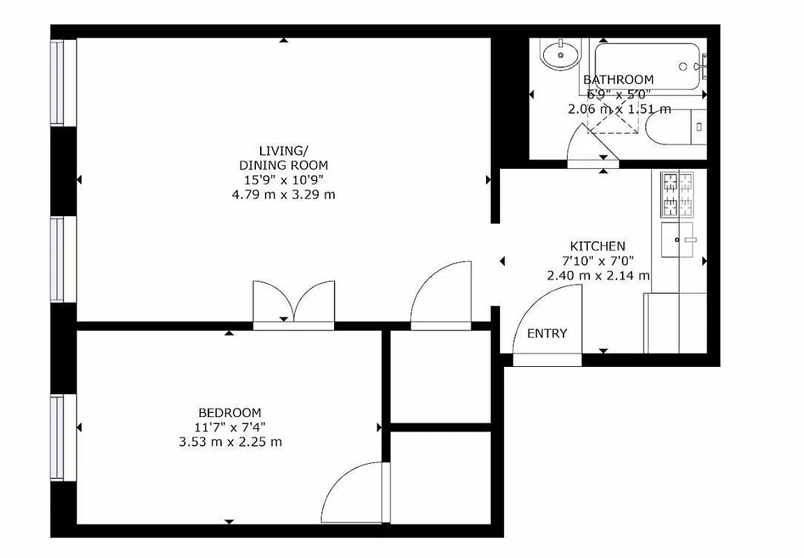
*Explore the floorplan below for a visual tour.
Policies
Sorry, policy info isn’t available right now. Check back later.
Home features
Hardwood floors
View
Garden
Building amenities
No info on building amenities
About the building
403 West 44th Street
403 West 44th Street, New York, NY 10036
8 units
4 stories
1920 built
For rent
0 available units for rentProperty history
Prices shown are base rent only. For total monthly price and additional fees, see .
| Date | Base rent | Event |
|---|---|---|
12/22/2023 | $2,700 | No longer available |
9/22/2023 | $2,700 | Temporarily off market |
8/31/2023 | $2,700 | Price increased by 4% |
8/28/2023 | $2,590 | Price decreased by 0% |
8/24/2023 | $2,595 | Price decreased by 0% |
Sign in to take a closer look at how this home compares to similar homes.
Explore Hell's Kitchen
Transit
| Location | Distance |
|---|---|
ACENQRWS1237at Times Square–42nd St | 0.19 miles |
CEat 50th St | 0.29 miles |
NRWat 49th St | 0.37 miles |
1at 50th St | 0.41 miles |
123ACEat 34th St–Penn Station | 0.49 miles |
Similar homes
Prices shown are base rent only and don't include any fees. Visit each listing to see a complete cost breakdown.
Similar Homes looks at ad spend and other factors like location, price, and number of beds and baths.





























































