View this home virtually
$3,800
For Rent
Base rent only. For total monthly price and additional fees, see .
Rented 10/15/2020
1,800 ft²
$25 per ft²
7 rooms
3 beds
2 baths
Three-family home
- Stuyvesant Heights
Under NYC law, you can't be charged a broker fee if you didn't hire a broker.
Listed By
Owner
This home has been saved by 24 users.
Listing by Owner
Unavailable
Rented on 10/15/2020
Days on market
10 days
Last price change
No changes
About
Text message 718-306-2567 if interested.
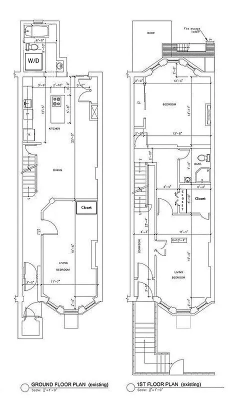
This is a rare opportunity to rent a massive three bedroom duplex apartment that is true to most of its original layout. The apartment is a spacious 1800 sqft with plenty of the original details, like Wainscoting, crown moldings and parquet floors. All three bedrooms can easily fit a king size bed and have their own closet.
Policies
Sorry, policy info isn’t available right now. Check back later.
Home features
Dishwasher
Fireplace
Washer/dryer
Building amenities
No info on building amenities
About the building
408 Hancock Street
408 Hancock Street, Brooklyn, NY 11216
3 units
3 stories
1899 built
Property history
Prices shown are base rent only. For total monthly price and additional fees, see .
| Date | Base rent | Event |
|---|---|---|
10/15/2020 | $3,800 | Rented by Owner |
10/5/2020 | $3,800 | Listed by Owner |
5/16/2018 | $3,600 | |
4/18/2018 | $3,600 |
Past listing photos
Sign in to take a closer look at how this home compares to similar homes.
Explore Stuyvesant Heights
Transit
| Location | Distance |
|---|---|
ACat Kingston–Throop | 0.25 miles |
ACat Utica Av | 0.48 miles |
ACat Nostrand Av | 0.57 miles |
LIRRat Nostrand Avenue | 0.58 miles |
Gat Bedford–Nostrand Avs | 0.77 miles |
Similar homes
Prices shown are base rent only and don't include any fees. Visit each listing to see a complete cost breakdown.
Similar Homes looks at ad spend and other factors like location, price, and number of beds and baths.











































































































