- ft²
8 rooms
4 beds
3 baths
Two-family home
- Bushwick
recorded sale
Sold on 6/17/2015
Verified by closing records
Last listed for $850,000
Seller's agent
This home has been saved by 57 users.
Listing by Corcoran, Limited Liability Broker, 1413 Fulton Street, Brooklyn, NY 11216 | Brokerage Listing ID: 3402606
Common charges
Not applicable
Estimated payment
$4,456/mo
Legal disclaimerAll calculations are estimates provided by StreetEasy for informational purposes only. Actual amounts or financing terms may vary. Please contact your mortgage provider for specifics.Taxes
$144/mo
Tax abatement
No info
About
Seller’s agent
description
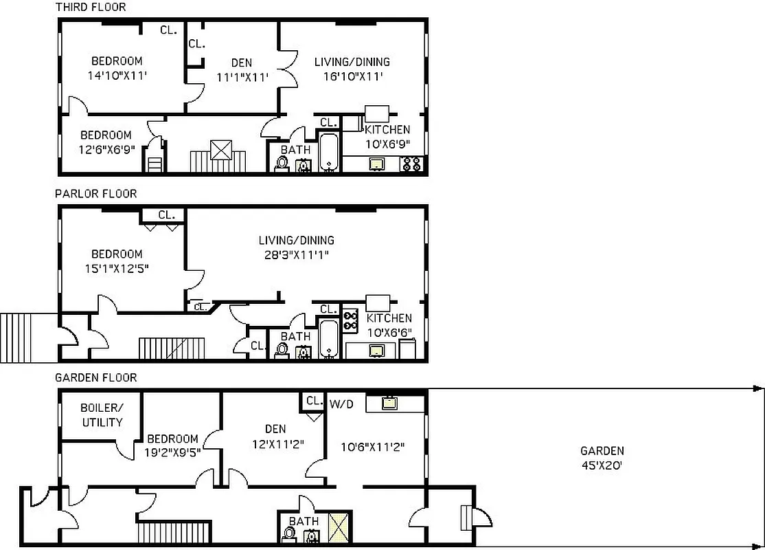
Excellent Investment Opportunity: This 3-story, 3-family 18.75 X 42ft townhouse was recently upgraded and features 3 units all with separate entrances. High ceilings, new floors and large windows give each unit an open, loft-like feel. Located in booming Bushwick one of Brooklyns most sought after neighborhoods near one of the best train stops the Myrtle Wyckoff L and M, plus more and more bars, restaurants and cafes opening.
Policies
Sorry, policy info isn’t available right now. Check back later.
Home features
No info on home features
Building amenities
No info on building amenities
About the building
415 Wilson Avenue
415 Wilson Avenue, Brooklyn, NY 11221
2 units
3 stories
1920 built
For sale
0 available units for saleFor rent
0 available units for rentDocuments and permits
View documents and permitsProperty history
- Price Change: No changes
- Days on market: 62 daysThis is the number of days the listing has been on StreetEasy.
| Date | Price | Event |
|---|---|---|
4/13/2022 | $1,225,000 | |
2/28/2022 | $1,300,000 | |
12/27/2021 | $1,300,000 | |
11/22/2018 | $1,235,000 | |
11/21/2018 | $1,235,000 |
Past listing photos
Sign in to take a closer look at how this home compares to similar homes.
Explore Bushwick
Transit
| Location | Distance |
|---|---|
Mat Knickerbocker Av | 0.37 miles |
LMat Myrtle Av | 0.39 miles |
Lat Halsey St | 0.49 miles |
JZat Gates Av | 0.55 miles |
Jat Halsey St | 0.6 miles |
About Bushwick
Rental prices shown are base rent before any fees. Visit listings for cost and fees breakdown.
SalesMedian asking price
4 beds
$1.5M
RentalsMedian asking base rent
4 beds
$4,500
Bushwick has seen a lot of change over the years. In the early 1900s, it was known for its thriving distilleries and breweries. After those industries declined, it experienced a long period of blight through the 1970s and 1980s. Now the neighborhood is seeing a renaissance, as artists pushed out of Williamsburg and elsewhere move in and raise property values. Bushwick offers unconventional living spaces: The housing market is full of converted lofts in old factories, sometimes with great access to outdoor space.
Learn more about Bushwick











































































































