$4,250,000
For Sale
No longer available 8/2/2017
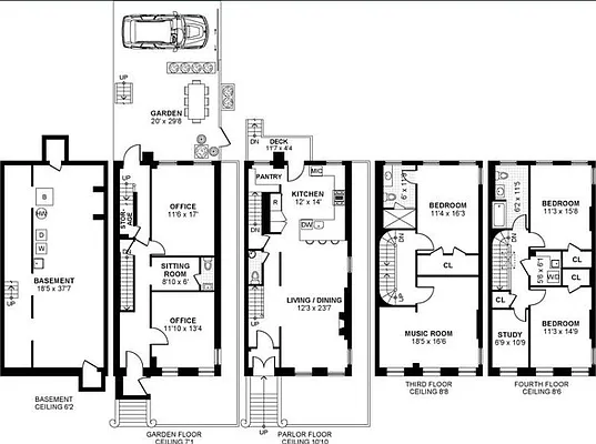
3,360 ft²
$1,264 per ft²
12 rooms
5 beds
2+ baths
House
- Carroll Gardens
Resale
Seller's agent
This home has been saved by 69 users.
Listing by Rosemark Group Inc, Real Estate Principal Office, 1 River Place, New York, NY 10036
Common charges
Not applicable
Estimated payment
$22,392/mo
Legal disclaimerAll calculations are estimates provided by StreetEasy for informational purposes only. Actual amounts or financing terms may vary. Please contact your mortgage provider for specifics.Taxes
$1,291/mo
Tax abatement
No info
About
Seller’s agent
description
Situated on a beautiful tree-lined street, this 18th century twenty-foot wide corner townhouse is in mint condition. Two (2) parking spots are attached to the home via a private gated backyard. Located on the cusp of Carroll Gardens, Boerum Hill, and Cobble Hill, this unique home is located just one block from the Smith Street F train in one of Brooklyn's most desirable neighborhoods, lined with award winning restaurants, café’s, Whole Foods Supermarkets and every amenity you could think of.
Policies
Sorry, policy info isn’t available right now. Check back later.
Home features
Central air
Dishwasher
Fireplace
Private outdoor space
Balcony, Garden, Patio
Washer/dryer
Building amenities
Services and facilities
Laundry in building
Parking
Wellness and recreation
No info on wellness and recreation
Shared outdoor space
Courtyard
About the building
417 Sackett Street
417 Sackett Street, Brooklyn, NY 11231
1 unit
4 stories
1870 built
For sale
0 available units for saleFor rent
0 available units for rentDocuments and permits
View documents and permitsProperty history
- Price Change: No changes
- Days on market: 184 daysThis is the number of days the listing has been on StreetEasy.
| Date | Price | Event |
|---|---|---|
3/3/2021 | $3,650,000 | |
1/16/2021 | $3,795,000 | |
9/24/2020 | $3,795,000 | |
10/2/2019 | $4,100,000 | |
7/3/2019 | $4,100,000 |
Past listing photos
Sign in to take a closer look at how this home compares to similar homes.
Explore Carroll Gardens
Transit
| Location | Distance |
|---|---|
FGat Carroll St | 0.16 miles |
FGat Bergen St | 0.27 miles |
Rat Union St | 0.51 miles |
FGRat Smith–9th St | 0.58 miles |
ACGat Hoyt & Schermerhorn | 0.59 miles |
About Carroll Gardens
Rental prices shown are base rent before any fees. Visit listings for cost and fees breakdown.
SalesMedian asking price
5 beds
$4.91M
Carroll Gardens is at once the heart of old-school Brooklyn and a showcase for the borough's brownstone boom. The neighborhood has long been known for its red-sauce Italian joints and lively street life. But now, staples like Caputo's Bake Shop and Monteleone's Bakery and Café abut upscale stroller shops, yoga studios and fro-yo joints. Despite the newcomers, the neighborhood still feels like a small town, one of the few places where you might know your neighbors, your postman and your butcher by name.
Learn more about Carroll Gardens



























































































































































