View this home virtually
$6,750
For Rent
Base rent only. For total monthly price and additional fees, see .
Rented 7/20/2025
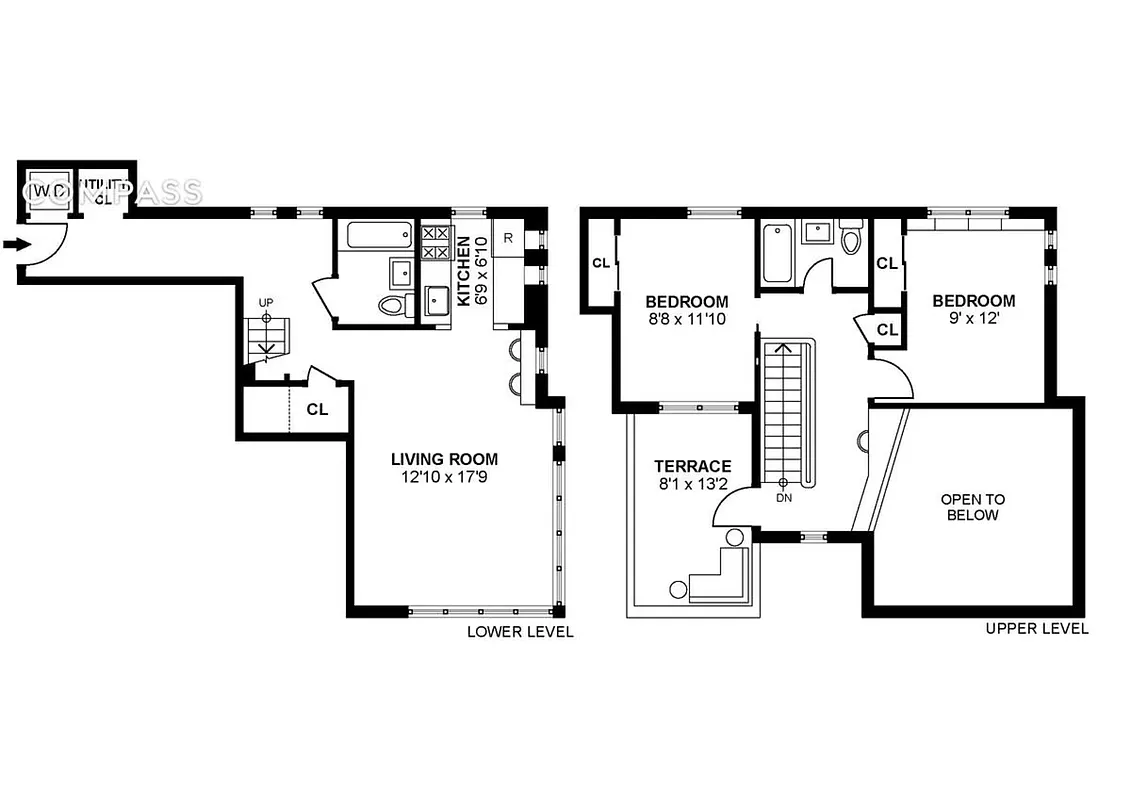
1,169 ft²
$69 per ft²
4 rooms
2 beds
2 baths
Under NYC law, you can't be charged a broker fee if you didn't hire a broker.
Listed By
This home has been saved by 22 users.
Listing by Realty Collective, Limited Liability Broker, 351 Van Brunt Street, Brooklyn, NY 11231
Unavailable
Rented on 7/20/2025
Days on market
9 days
Last price change
No changes
About
NO FEE | A Hidden Haven at 42 Tiffany Place – Unit 5C
Step off the beaten path and into your own retreat—right in the heart of the Columbia Street Waterfront District on iconic Tiffany Place.
Tucked along a picturesque cobblestone block, this approx. 1,160 SF corner duplex is full of character, charm, and rare-to-find outdoor space with water and statue of liberty views from the deck .
Policies
Sorry, policy info isn’t available right now. Check back later.
Home features
Central air
Dishwasher
Hardwood floors
Private outdoor space
Terrace
View
City, Skyline, Water
Washer/dryer
Building amenities
No info on building amenities
About the building
42 Tiffany Place
42 Tiffany Place, Brooklyn, NY 11231
12 units
6 stories
2002 built
Property history
Prices shown are base rent only. For total monthly price and additional fees, see .
| Date | Base rent | Event |
|---|---|---|
7/20/2025 | $6,750 | Rented by Realty Collective |
7/3/2025 | $6,750 | In contract |
6/24/2025 | $6,750 | Listed by Realty Collective |
Past listing photos
Sign in to take a closer look at how this home compares to similar homes.
Explore Columbia St Waterfront District
Transit
| Location | Distance |
|---|---|
FGat Carroll St | 0.51 miles |
FGat Bergen St | 0.52 miles |
R2345at Borough Hall/Court St | 0.69 miles |
FGRat Smith–9th St | 0.82 miles |
ACGat Hoyt & Schermerhorn | 0.84 miles |
Similar homes
Prices shown are base rent only and don't include any fees. Visit each listing to see a complete cost breakdown.
Similar Homes looks at ad spend and other factors like location, price, and number of beds and baths.

















































































































