$1,900
For Rent
Base rent only. For total monthly price and additional fees, see .
Rented 7/20/2021
- ft²
1 room
Studio
1 bath
Condop
- Lenox Hill
Under NYC law, you can't be charged a broker fee if you didn't hire a broker.
Listed By
This home has been saved by 224 users.
Listing by AIB Management Corp, Corporate Broker, 500 West 43rd Street, New York, NY 10036
Searching with a housing voucher, like Section 8?
Unavailable
Rented on 7/20/2021
Days on market
90 days
Last price change
No changes
About
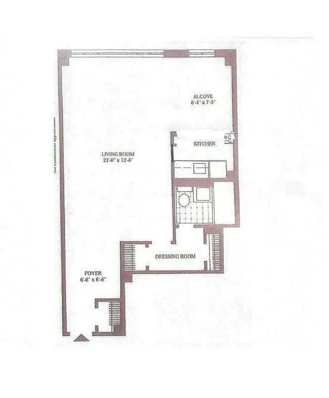
This unique alcove studio features 20 feet of windows facing serene professionally landscaped terrace gardens. Enter the spacious foyer with room for a computer workspace/home office. Enjoy an open and well-prportioned living room with hardwood floors throughout. Next is the open kitchen, new gas range and refrigerator opening to the formal windowed dining area..
Policies
Pets allowed
Cats and dogs allowed
Home features
Hardwood floors
View
Garden
Building amenities
Services and facilities
Bike room
Concierge
Doorman
Full-time
Elevator
Laundry in building
Live-in super
Package room
Parking
Garage
Wellness and recreation
Gym
Shared outdoor space
No info on shared outdoor space
About the building
420 East 64th Street
420 East 64th Street, New York, NY 10065
Complex:
The Royal York- units
- stories
- built
Property history
Prices shown are base rent only. For total monthly price and additional fees, see .
| Date | Base rent | Event |
|---|---|---|
7/20/2021 | $1,900 | Rented by AIB Management Corp |
7/8/2021 | $1,900 | In contract |
4/9/2021 | $1,900 | Listed by AIB Management Corp |
4/27/2012 | $1,900 | |
8/5/2010 | $1,900 |
Past listing photos
Sign in to take a closer look at how this home compares to similar homes.
Explore Lenox Hill
Transit
| Location | Distance |
|---|---|
Qat 72nd St | 0.36 miles |
NRW456at Lexington Av/59th St | 0.38 miles |
FQat Lexington Av/63rd St | 0.46 miles |
6at 68th StâHunter College | 0.5 miles |
EM6at Lexington Avâ53rd St | 0.62 miles |
Similar homes
Prices shown are base rent only and don't include any fees. Visit each listing to see a complete cost breakdown.
Similar Homes looks at ad spend and other factors like location, price, and number of beds and baths.















































