$1,495,000
For Sale
1,700 ft²
$879 per ft²
6 rooms
6 beds
3 baths
Two-family home
- Greenwood
Resale
This home has been saved by 2 users.
Listing by Remax Edge, Limited Liability Broker, 1812 Bath Avenue, Brooklyn, NY 11214
Listing updated in the last 2 days
Common charges
Not applicable
Estimated payment
$7,658/mo
Legal disclaimerAll calculations are estimates provided by StreetEasy for informational purposes only. Actual amounts or financing terms may vary. Please contact your mortgage provider for specifics.Taxes
No info
Tax abatement
No info
About
Seller’s agent
description
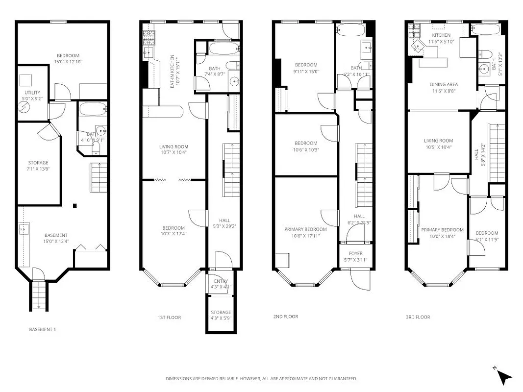
Well maintained brick multi-family home with 3 stories and fully finished basement with separate entrance. Currently configured with 3 apartments offering living and income potential. Hardwood floors, gas heat and hot water, private fenced backyard, solid block foundation and street parking. Prime location one block from the R train, about 20 minutes to Manhattan and Downtown Brooklyn, close to...
Policies
Sorry, policy info isn’t available right now. Check back later.
Home features
No info on home features
Building amenities
No info on building amenities
About the building
425 36th Street
425 36th Street, Brooklyn, NY 11232
2 units
2 stories
1920 built
Property history
- Price Change: No changes
- Days on market: Listed todayThis is the number of days the listing has been on StreetEasy.
| Date | Price | Event |
|---|---|---|
2/7/2026 | $1,495,000 | Listed by Remax Edge |
5/23/2019 | $1,400,000 | |
2/13/2015 | $1,400,000 | |
2/11/2015 | $1,400,000 |
Sign in to take a closer look at how this home compares to similar homes.
Explore Greenwood
Transit
| Location | Distance |
|---|---|
NRat 36th St | under 500 feet |
Rat 45th St | 0.44 miles |
Rat 25th St | 0.52 miles |
Dat 9th Av | 0.71 miles |
Rat 53rd St | 0.86 miles |














































































