$4,500
For Rent
Base rent only. For total monthly price and additional fees, see .
Rented 10/19/2025
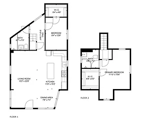
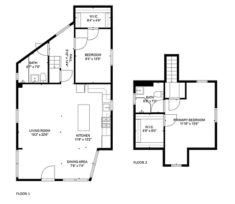
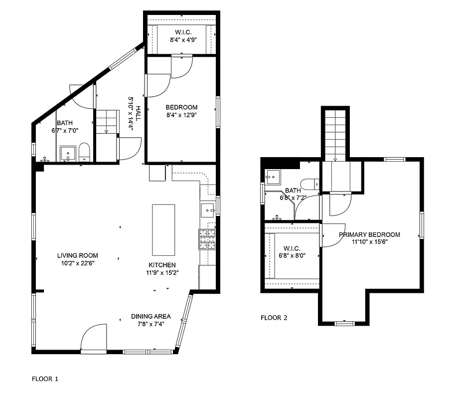
1,300 ft²
$41 per ft²
3 rooms
2 beds
2 baths
Mixed-use building
- Astoria
Under NYC law, you can't be charged a broker fee if you didn't hire a broker.
Listed By
This home has been saved by 45 users.
Listing by Kole Group, Real Estate Principal Office, 7 Anderson Road, Hampton Bays, NY 11946
Unavailable
Rented on 10/19/2025
Days on market
51 days
Last price change
↓ $250 (-5.3%) on 9/4/25
About
(We do not respond to texts and calls. For a response email us or message us through the listing.)
Astoria Fully-Detached SMART Home with Parking, Designer Finishes – Steps from the Best Dining in Queens (Furnished is an option)
Welcome to 42-12 Astoria Blvd – a beautifully renovated, sound-insulated detached home with driveway, side yard, and parking included.
Policies
Sorry, policy info isn’t available right now. Check back later.
Home features
Central air
Dishwasher
Furnished
Private outdoor space
Garden
Washer/dryer
Building amenities
Sorry, building amenities aren't available right now. Check back later.
About the building
42-12 Astoria Boulevard South
42-12 Astoria Boulevard South, Astoria, NY 11103
1 unit
2 stories
1929 built
Property history
Prices shown are base rent only. For total monthly price and additional fees, see .
| Date | Base rent | Event |
|---|---|---|
10/19/2025 | $4,500 | Rented by Kole Group |
9/29/2025 | $4,500 | In contract |
9/4/2025 | $4,500 | Price decreased by 5% |
8/24/2025 | $4,750 | Price decreased by 5% |
8/17/2025 | $5,000 | Price decreased by 5% |
Past listing photos
Sign in to take a closer look at how this home compares to similar homes.
Explore Astoria
Transit
| Location | Distance |
|---|---|
NWat Astoria Blvd | 0.47 miles |
NWat Astoria–Ditmars Blvd | 0.49 miles |
NWat 30th Av | 0.67 miles |
MRat 46th St | 0.84 miles |
MRat Steinway St | 0.89 miles |
About Astoria
Rental prices shown are base rent before any fees. Visit listings for cost and fees breakdown.
SalesMedian asking price
2 beds
$991.5K
RentalsMedian asking base rent
2 beds
$3,599
Home to some 160,000 residents, Astoria is a bustling neighborhood long known for its great ethnic food, busy commercial thoroughfares and charming single-family homes. Astoria's quick commute into Midtown Manhattan (15 minutes on the N, R, W, or M) and reasonable home prices, however, have recently begun to attract newcomers. New developments are now cropping up and changing the landscape, too. Now, the neighborhood's historic single-family homes and postwar co-op buildings are interspersed with condominiums and upscale rentals.
Learn more about AstoriaSimilar homes
Prices shown are base rent only and don't include any fees. Visit each listing to see a complete cost breakdown.
Similar Homes looks at ad spend and other factors like location, price, and number of beds and baths.



















































































































