View this home virtually
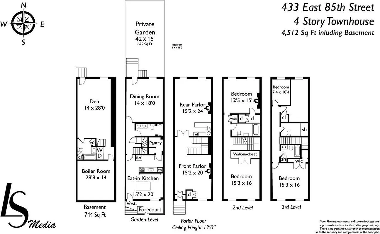
4,500 ft²
$1,233 per ft²
15 rooms
4 beds
5 baths
Three-family home
- Yorkville
recorded sale
Sold on 6/8/2018
Verified by closing records
Last listed for $5,750,000
Seller's agents
This home has been saved by 151 users.
Listing by Douglas Elliman, Limited Liability Broker, 372 West Broadway, New York, NY 10012 | Brokerage Listing ID: 3022610
Common charges
Not applicable
Estimated payment
$31,427/mo
Legal disclaimerAll calculations are estimates provided by StreetEasy for informational purposes only. Actual amounts or financing terms may vary. Please contact your mortgage provider for specifics.Taxes
$2,879/mo
Tax abatement
No info
About
Seller’s agent
Buyer’s agent
description
Welcome to 433 East 85th Street; Be the first to occupy this rare and stunning, newly renovated townhome complete with 5 bedrooms, 5 bathrooms, a 700 square foot garden and sprawling 12' foot ceilings. Built circa 1880, this turn-key home has been completely restored and upgraded, featuring the finest finishes, appliances and details, with no expense spared by the seller.
Policies
Sorry, policy info isn’t available right now. Check back later.
Home features
Fireplace
Private outdoor space
Garden
Building amenities
Services and facilities
Storage space
Wellness and recreation
Gym
Shared outdoor space
No info on shared outdoor space
About the building
433 East 85th Street
433 East 85th Street, New York, NY 10028
3 units
3 stories
1880 built
For sale
0 available units for saleFor rent
0 available units for rentDocuments and permits
View documents and permitsProperty history
- Price Change: ↓ $250,000 (-4.2%) on 5/18/18
- Days on market: 167 daysThis is the number of days the listing has been on StreetEasy.
| Date | Price | Event |
|---|---|---|
6/8/2018 | $5,550,000 | Sold by Douglas Elliman |
6/11/2018 | $5,750,000 | No longer available |
5/29/2018 | $5,750,000 | In contract |
5/18/2018 | $5,750,000 | Price decreased by 4% |
2/7/2018 | $6,000,000 | Price decreased by 8% |
Past listing photos
Sign in to take a closer look at how this home compares to similar homes.
Explore Yorkville
Transit
| Location | Distance |
|---|---|
Qat 86th St | 0.21 miles |
456at 86th St | 0.44 miles |
Qat 96th St | 0.5 miles |
6at 77th St | 0.61 miles |
6at 96th St | 0.69 miles |
About Yorkville
Rental prices shown are base rent before any fees. Visit listings for cost and fees breakdown.
SalesMedian asking price
4 beds
$4M
RentalsMedian asking base rent
4 beds
$15,472
When George Washington commandeered the building site that would eventually become Gracie Mansion, he probably didn't imagine that this peaceful, riverside enclave would become the lively residential neighborhood it is today. Between then and now, Yorkville has seen a lot of change. Tony mansions and elevated trains went up at the turn of the century and then came down in the postwar years as a middle-class population moved in.
Now, the neighborhood is a haven of high-rise co-ops and condos interspersed with quiet rows of townhouses. The mixed housing stock makes Yorkville a practical choice for anyone seeking a slowed-down Manhattan vibe. Several avenues over from the throngs of Lexington and Third Avenues, Yorkville maintains a low-key, no-frills feel — it's a place where you'll find more diners and donut shops than upscale lounges and boutiques. This homey attitude is writ in its storefronts, where the food is kept simple and the owners are often from around the block.










































































































































































































































