- ft²
3 rooms
1 bed
1 bath
Co-op
- Lenox Hill
Resale
recorded sale
Sold on 8/31/2021
Verified by closing records
Last listed for $495,000
Seller's agent
This home has been saved by 152 users.
Listing by Brown Harris Stevens, Real Estate Principal Office, 445 Park Avenue, New York, NY 10022
Maintenance fees
$1,975/mo
Estimated payment
$4,443/mo
Taxes
Included in maintenance fees
Tax abatement
No info
About
Seller’s agent
description
*NEW PRICE, OUTSTANDING VALUE! OVERSIZED ONE BEDROOM + LARGE CONVERTIBLE, SEPARATE DINING AREA IN EXCELLENT CONDITION!*
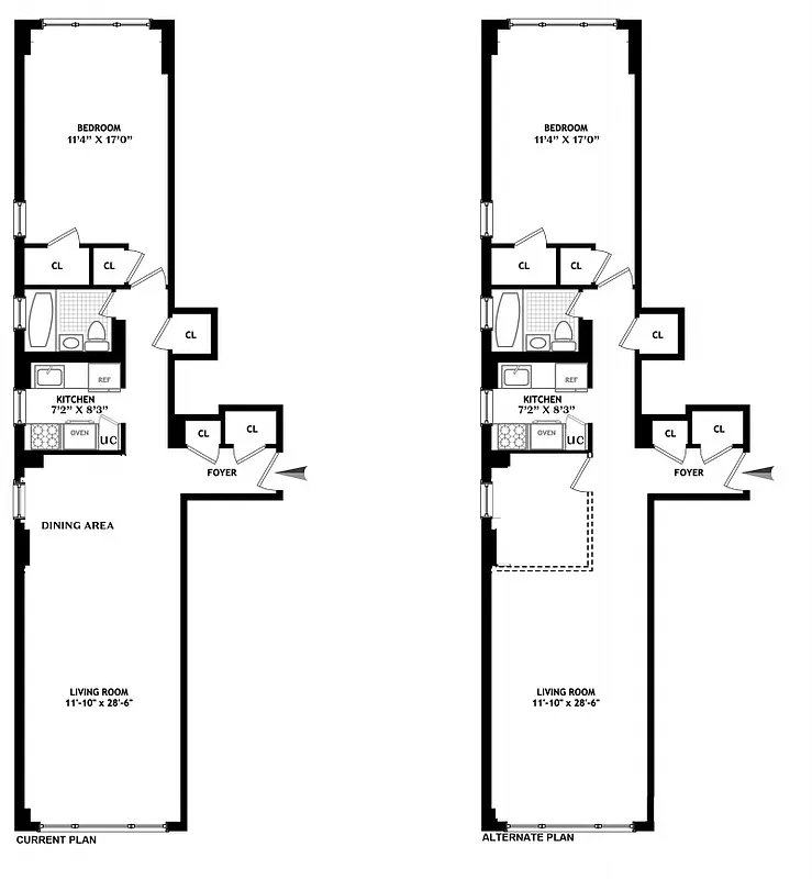
This H-line unit is the largest one-bedroom line in the building. It is also a most coveted end unit, running the entire west side with north, south and west-facing windows, open city views and great light all day.
Policies
Co-purchase allowed
Parents buying allowed
Pets allowed
Cats and dogs allowed
Pied-a-terre allowed
Sublets allowed
Home features
Dishwasher
Hardwood floors
View
City
Building amenities
Services and facilities
Bike room
Doorman
Full-time
Elevator
Laundry in building
Live-in super
Parking
Wellness and recreation
No info on wellness and recreation
Shared outdoor space
Roof deck
About the building
435 East 65th Street
435 East 65th Street, New York, NY 10065
120 units
14 stories
1963 built
For sale
3 available units for saleFor rent
0 available units for rentDocuments and permits
View documents and permitsProperty history
- Price Change: ↓ $30,000 (-5.7%) on 1/29/21
- Days on market: 155 days
| Date | Price | Event |
|---|---|---|
8/31/2021 | $495,000 | Sold by Brown Harris Stevens |
5/18/2021 | $495,000 | In contract |
1/29/2021 | $495,000 | Price decreased by 6% |
12/14/2020 | $525,000 | Listed by Brown Harris Stevens |
Past listing photos
Sign in to take a closer look at how this home compares to similar homes.
Explore Lenox Hill
Transit
| Location | Distance |
|---|---|
Qat 72nd St | 0.3 miles |
NRW456at Lexington Av/59th St | 0.44 miles |
6at 68th St–Hunter College | 0.47 miles |
FQat Lexington Av/63rd St | 0.49 miles |
EM6at Lexington Av–53rd St | 0.71 miles |
























































































