$2,595,000
For Sale
3,200 ft²
$810 per ft²
15 rooms
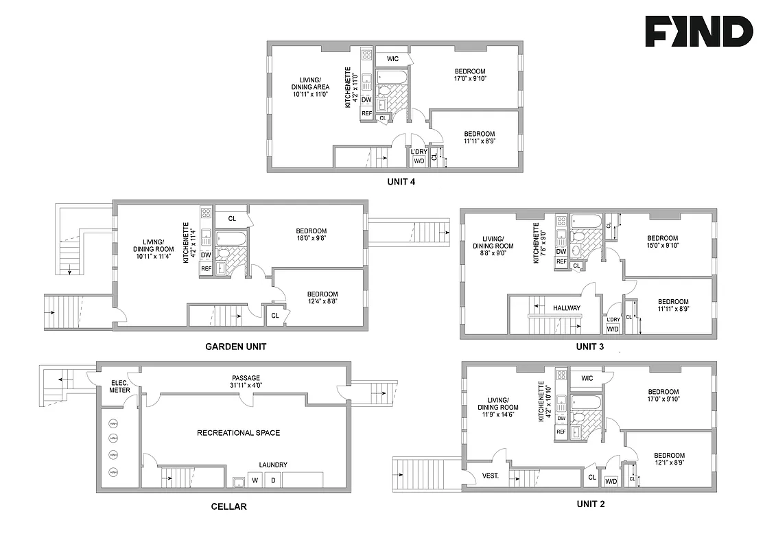
8 beds
4 baths
Four-family home
- Bedford-Stuyvesant
Resale
This home has been saved by 5 users.
Listing by FIND Real Estate, Real Estate Principal Office, 401 New Karner Road, Albany, NY 12205
Common charges
Not applicable
Estimated payment
$13,909/mo
Legal disclaimerAll calculations are estimates provided by StreetEasy for informational purposes only. Actual amounts or financing terms may vary. Please contact your mortgage provider for specifics.Taxes
$685/mo
Tax abatement
No info
About
Seller’s agent
description
Welcome to 44 Van Buren St, a stellar turn key investment property.
Just around the corner of Herbert Von King Park in the heart of Bedford-Stuyvesant, this impressive 20-foot-wide, four-story townhouse with a full cellar presents a rare opportunity to acquire a fully rented, income-producing property in one of Brooklyn’s most vibrant and established neighborhoods.
Policies
Sorry, policy info isn’t available right now. Check back later.
Home features
Central air
Dishwasher
Hardwood floors
Private outdoor space
Garden
Washer/dryer
Building amenities
Services and facilities
Doorman
Virtual
Laundry in building
Wellness and recreation
No info on wellness and recreation
Shared outdoor space
Courtyard
About the building
44 Van Buren Street
44 Van Buren Street, Brooklyn, NY 11221
4 units
4 stories
1899 built
For sale
1 available units for saleFor rent
0 available units for rentDocuments and permits
View documents and permitsProperty history
- Price Change: No changes
- Days on market: 3 daysThis is the number of days the listing has been on StreetEasy.
| Date | Price | Event |
|---|---|---|
3/4/2026 | $2,595,000 | Listed by FIND Real Estate |
Sign in to take a closer look at how this home compares to similar homes.
Explore Bedford-Stuyvesant
Transit
| Location | Distance |
|---|---|
Gat Bedford–Nostrand Avs | 0.42 miles |
Gat Myrtle–Willoughby Avs | 0.48 miles |
JMZat Myrtle Av | 0.65 miles |
ACat Kingston–Throop | 0.69 miles |
ACat Nostrand Av | 0.71 miles |
About Bedford-Stuyvesant
Rental prices shown are base rent before any fees. Visit listings for cost and fees breakdown.
SalesMedian asking price
8 beds
$2.4M
Bedford-Stuyvesant is a vast Brooklyn neighborhood filled with historic brownstones. Fans of Victorian architecture will appreciate the striking abodes in the leafy historic district.
Learn more about Bedford-Stuyvesant

















































































































































































