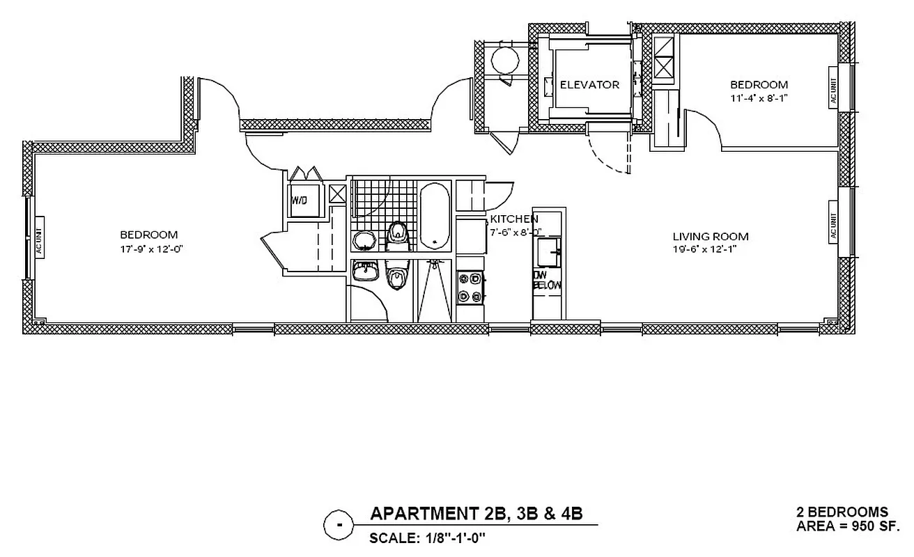
950 ft²
$721 per ft²
4 rooms
2 beds
2 baths
Condo
- East Harlem
Resale
recorded sale
Sold on 9/2/2021
Verified by closing records
Last listed for $698,500
Seller's agent
This home has been saved by 71 users.
Listing by Compass, Corporate Broker, 575 Madison Avenue -, New York, NY 10022
Common charges
$594/mo
Estimated payment
$4,790/mo
Taxes
$17/mo
Tax abatement
421a expires in 2032
About
Seller’s agent
Buyer’s agent
description
East Harlem is a vibrant showcase of diverse cultures, from iconic Italian restaurants like Rao’s and Patsy’s pizzeria to its mix of Latin American and Caribbean restaurants like Island Bites. We bring you 440 East 117th Street, 3B.
A new 5-story, 10-unit condo in this cute Pleasantville neighborhood on 117th Street between 1st and Pleasant Avenue.
Head up to your 2Bedroom, 2Bathroom in your private keyed elevator.
Policies
Pets allowed
Cats and dogs allowed
Home features
Dishwasher
View
Garden, Skyline
Washer/dryer
Building amenities
Services and facilities
Elevator
Wellness and recreation
No info on wellness and recreation
Shared outdoor space
Courtyard
Roof deck
About the building
440 East 117th Street
440 East 117th Street, New York, NY 10035
10 units
5 stories
2004 built
For sale
1 available units for saleFor rent
0 available units for rentDocuments and permits
View documents and permitsProperty history
- Price Change: ↓ $16,500 (-2.3%) on 5/26/21
- Days on market: 57 days
| Date | Price | Event |
|---|---|---|
9/2/2021 | $685,000 | Sold by Compass |
9/10/2021 | $698,500 | No longer available |
7/7/2021 | $698,500 | In contract |
5/26/2021 | $698,500 | Price decreased by 2% |
5/11/2021 | $715,000 | Listed by Compass |
Past listing photos
Sign in to take a closer look at how this home compares to similar homes.
Explore East Harlem
Transit
| Location | Distance |
|---|---|
6at 116th St | 0.45 miles |
6at 110th St | 0.56 miles |
456at 125th St | 0.6 miles |
6at 103rd St | 0.83 miles |
23at 116th St | 0.93 miles |
About East Harlem
Rental prices shown are base rent before any fees. Visit listings for cost and fees breakdown.
SalesMedian asking price
2 beds
$772.5K
RentalsMedian asking base rent
2 beds
$3,235
East Harlem has a wealth of mom-and-pop shops, a lively art scene, and is home to East River Plaza shopping mall known for its big-box stores, including Costco.
Learn more about East Harlem



































































































































