2,100 ft²
$1,664 per ft²
4 rooms
1 bed
2 baths
Co-op
- Soho
Resale
recorded sale
Sold on 8/6/2021
Verified by closing records
Last listed for $3,495,000
Seller's agent
This home has been saved by 8 users.
Listing by Brown Harris Stevens, Real Estate Principal Office, 43 North Moore Street, New York, NY 10013
Maintenance fees
$1,850/mo
Estimated payment
$18,273/mo
Taxes
Included in maintenance fees
Tax abatement
No info
About
Seller’s agent
Buyer’s agent
description
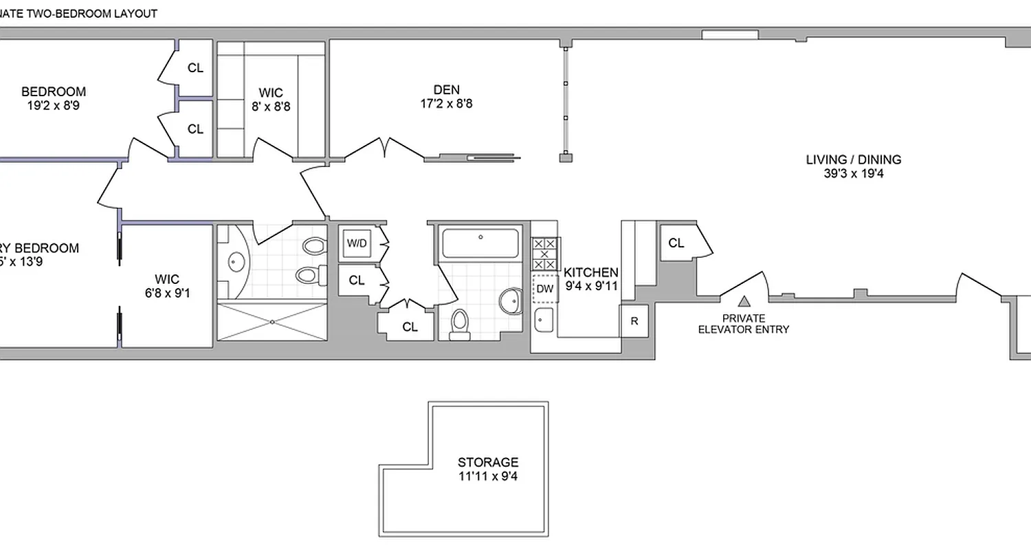
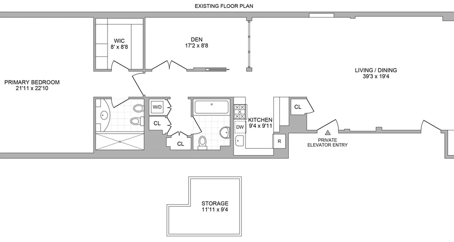
This exquisite SoHo loft is generously proportioned and is ideal for exceptional living and entertaining. Approximately 2,100sf and currently configured as a convertible two-bedroom, two-bathroom, plus a large den, which currently serves as a sleeping quarter, this property offers incredible light, charm, and character.
Policies
Pets allowed
Cats and dogs allowed
Pied-a-terre allowed
Home features
Central air
Dishwasher
Hardwood floors
View
City, Skyline
Washer/dryer
Building amenities
Services and facilities
Bike room
Elevator
Package room
Storage space
Locker/cage
Wheelchair access
Wellness and recreation
No info on wellness and recreation
Shared outdoor space
Roof deck
About the building
45 Crosby Street
45 Crosby Street, New York, NY 10012
12 units
7 stories
1920 built
For sale
0 available units for saleFor rent
0 available units for rentDocuments and permits
View documents and permitsProperty history
- Price Change: No changes
- Days on market: 0 days
| Date | Price | Event |
|---|---|---|
8/6/2021 | $3,495,000 | Sold by Brown Harris Stevens |
4/23/2021 | $3,495,000 | In contract |
4/23/2021 | $3,495,000 | Listed by Brown Harris Stevens |
10/23/2018 | $3,699,000 | |
9/12/2018 | $3,699,000 | Price decreased by 3% |
Past listing photos
Sign in to take a closer look at how this home compares to similar homes.
Explore Soho
Transit
| Location | Distance |
|---|---|
6at Spring St | under 500 feet |
RWat Prince St | 0.16 miles |
JNQRWZ6at Canal St | 0.23 miles |
BDFM6at Broadway–Lafayette St | 0.25 miles |
BDFM6at Bleecker St | 0.27 miles |
About Soho
Rental prices shown are base rent before any fees. Visit listings for cost and fees breakdown.
SalesMedian asking price
1 bed
$2.03M
RentalsMedian asking base rent
1 bed
$5,512
SoHo has some of the best people-watching in Manhattan, as it is a mecca for the trendy, sophisticated downtown elite. The north-south running streets are often sites of fashion shoots as well as home to upscale European boutiques. The east-west running streets are busier and always clogged with vendors selling everything from iPhone cases to incense. One you hit Broadway, you could be in just about any mall in America with retail chains, tourists, teenagers, and disgruntled New Yorkers dominating the avenue. The energy in SoHo is fast-paced and all hustle and bustle; it is a quintessentially vibrant New York neighborhood, but certainly not for the faint-of-heart or those looking for some peace and quiet.
Learn more about Soho






























































































