$7,400
For Rent
Base rent only. For total monthly price and additional fees, see .
Rented 4/11/2020
- ft²
6 rooms
4 beds
2 baths
House
- Brooklyn Heights
Under NYC law, you can't be charged a broker fee if you didn't hire a broker.
Listed By
This home has been saved by 48 users.
Listing by Brown Harris Stevens, Real Estate Principal Office, 129 Montague Street, Brooklyn, NY 11201
Unavailable
Rented on 4/11/2020
Days on market
45 days
Last price change
No changes
About
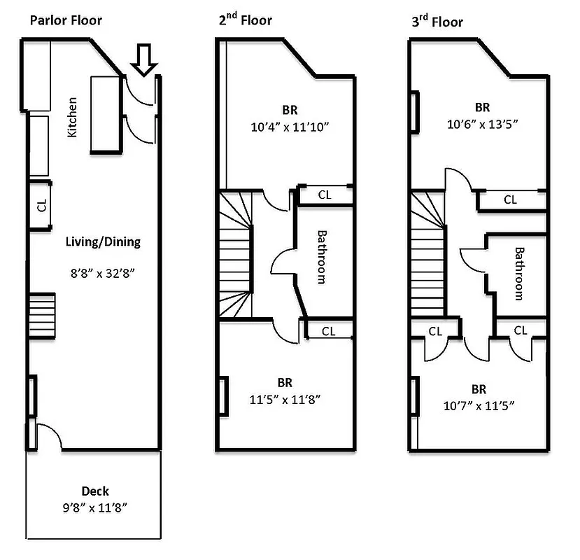
This lovely parlor triplex is rarely available. Elegant Parlor floor with welcoming staircase, wood burning fireplace, Private deck and a deep (Shared) Garden. Renovated kitchen. Lovely hardwood floors. Charming details. The second floor has two ample bedrooms plus a bathroom.The top floor has two additional bedrooms plus a full bathroom.
Policies
Sorry, policy info isn’t available right now. Check back later.
Home features
Dishwasher
Fireplace
Hardwood floors
Private outdoor space
Garden
Washer/dryer
Building amenities
No info on building amenities
About the building
45A Hicks Street
45a Hicks Street, Brooklyn, NY 11201
1 unit
3 stories
1899 built
For rent
0 available units for rentProperty history
Prices shown are base rent only. For total monthly price and additional fees, see .
| Date | Base rent | Event |
|---|---|---|
4/11/2020 | $7,400 | Rented by Brown Harris Stevens |
2/26/2020 | $7,400 | Listed by Brown Harris Stevens |
7/19/2019 | $7,500 | |
6/29/2019 | $7,500 |
Past listing photos
Sign in to take a closer look at how this home compares to similar homes.
Explore Brooklyn Heights
Transit
| Location | Distance |
|---|---|
ACat High St | 0.11 miles |
23at Clark St | 0.18 miles |
Ferryat Fulton Ferry Landing | 0.21 miles |
Fat York St | 0.35 miles |
R2345at Borough Hall/Court St | 0.4 miles |
About Brooklyn Heights
Rental prices shown are base rent before any fees. Visit listings for cost and fees breakdown.
SalesMedian asking price
4 beds
$5.31M
RentalsMedian asking base rent
4 beds
$12,175
Brooklyn Heights is known for its gorgeous housing stock and its impressive backdrop. The Promenade is the neighborhood's most celebrated and popular public space, offering just about the best views of the Brooklyn Bridge and the Manhattan skyline that can be found. There, you're likely to find locals walking their Westies, kids zooming around on scooters, and tourists excitedly snapping pics — every one of them savoring the views from this prime perch of a neighborhood.
Learn more about Brooklyn HeightsSimilar homes
Prices shown are base rent only and don't include any fees. Visit each listing to see a complete cost breakdown.
Similar Homes looks at ad spend and other factors like location, price, and number of beds and baths.


















































































