$1,775,000
For Sale
3,300 ft²
$537 per ft²
9 rooms
5 beds
2.5 baths
Mixed-use building
- Bedford-Stuyvesant
Resale
This home has been saved by 7 users.
Listing by Home by Choice LLC, Limited Liability Broker, 254 West 31st Street, New York, NY 10001
Common charges
Not applicable
Estimated payment
$7,388/mo
Legal disclaimerAll calculations are estimates provided by StreetEasy for informational purposes only. Actual amounts or financing terms may vary. Please contact your mortgage provider for specifics.Taxes
No info
Tax abatement
No info
About
Seller’s agent
description
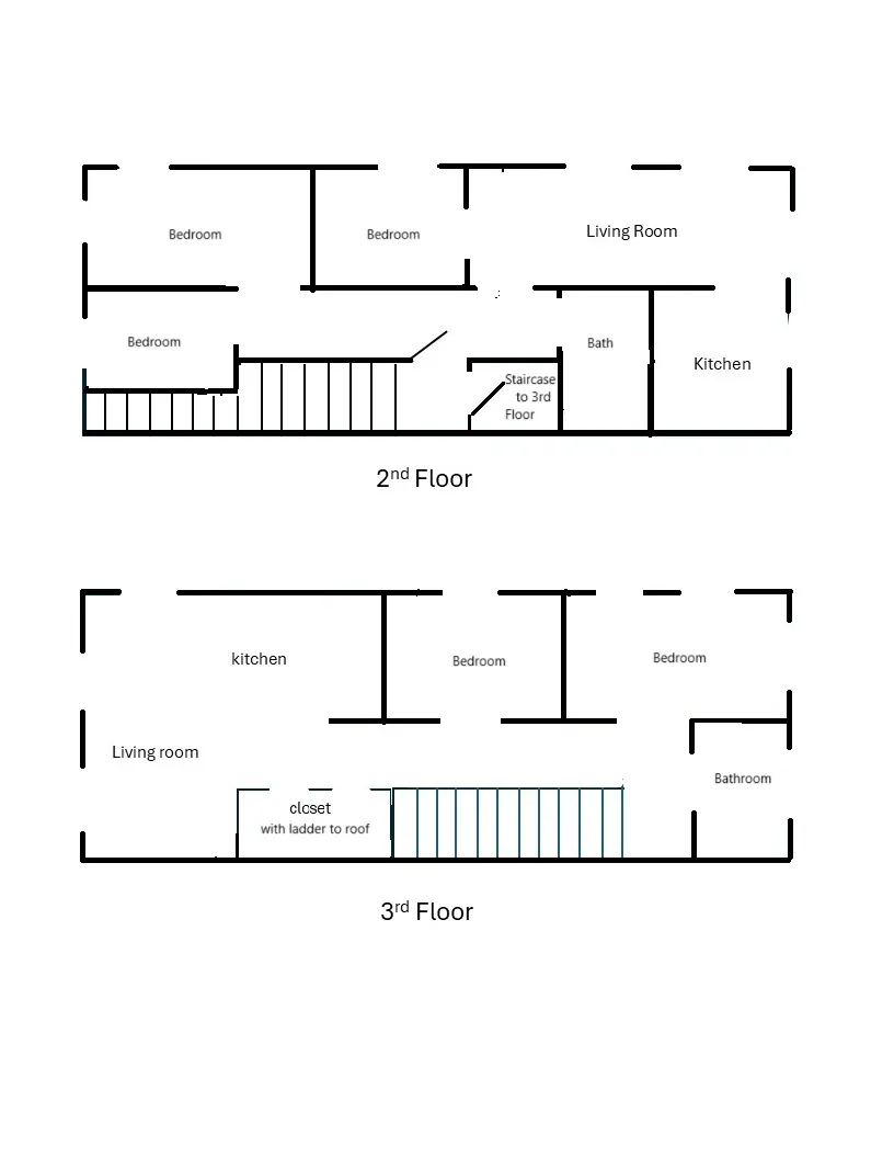
Large Mixed-use building - Extra Wide 22' - Corner Building great upside potential.
just back on the market.
493 Tompkins Ave - aka 3 Decatur Street
Prime Bed Sty neighborhood location
Building: 22' X 50'lot: 22' X 70
Nice backyard - with the possibility of creating a curb cut.
Currently: 3300sqf plus fully useable basement FAR: 3, total buildable : 4640sqft.
Policies
Sorry, policy info isn’t available right now. Check back later.
Home features
No info on home features
Building amenities
Services and facilities
Laundry in building
Wellness and recreation
No info on wellness and recreation
Shared outdoor space
Courtyard
Roof deck
About the building
493 Tompkins Avenue
493 Tompkins Avenue, Brooklyn, NY 11216
2 units
3 stories
1899 built
For sale
1 available units for saleFor rent
0 available units for rentDocuments and permits
View documents and permitsProperty history
- Price Change: No changes
- Days on market: 115 daysThis is the number of days the listing has been on StreetEasy.
| Date | Price | Event |
|---|---|---|
8/12/2025 | $1,775,000 | Listed by Home by Choice LLC |
Sign in to take a closer look at how this home compares to similar homes.
Explore Bedford-Stuyvesant
Transit
| Location | Distance |
|---|---|
| 0.1 miles |
| 0.3 miles |
| 0.33 miles |
| 0.58 miles |
| 0.66 miles |
About Bedford-Stuyvesant
Rental prices shown are base rent before any fees. Visit listings for cost and fees breakdown.
SalesMedian asking price
5 beds
$2.75M
RentalsMedian asking base rent
5 beds
$4,895
Bedford-Stuyvesant is a vast Brooklyn neighborhood filled with historic brownstones. Fans of Victorian architecture will appreciate the striking abodes in the leafy historic district.
Learn more about Bedford-Stuyvesant












































































































































































