$4,200
For Rent
Base rent only. For total monthly price and additional fees, see .
No longer available 3/1/2017
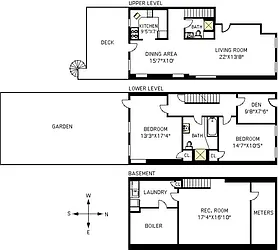
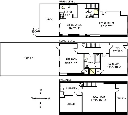
2,000 ft²
$25 per ft²
6 rooms
2 beds
2 baths
Four-family home
- Boerum Hill
Under NYC law, you can't be charged a broker fee if you didn't hire a broker.
Listed By
This home has been saved by 44 users.
Listing by Bond New York, Limited Liability Broker, 810 Seventh Avenue, New York, NY 10019 | Brokerage Listing ID: 1215290
Unavailable
No longer available on 3/1/2017
Days on market
12 days
Last price change
↓ $1,250 (-22.9%) on 2/20/17
About
Make this huge, enchanting 2.5 bedroom historic townhouse with a private yard on a lovely tree-lined Boerum Hill street your Brooklyn home. Central air conditioning will keep you cool when you're not relaxing on the deck overlooking your private backyard full of grape vines, peach and cherry trees and blueberry and raspberry bushes.
Policies
Sorry, policy info isn’t available right now. Check back later.
Home features
Central air
Dishwasher
Furnished
Private outdoor space
Balcony, Garden, Patio, Terrace
Washer/dryer
Building amenities
Services and facilities
No info on services and facilities
Wellness and recreation
Hot tub
Shared outdoor space
Deck
About the building
494 Warren Street
494 Warren Street, Brooklyn, NY 11217
4 units
3 stories
1900 built
Property history
Prices shown are base rent only. For total monthly price and additional fees, see .
| Date | Base rent | Event |
|---|---|---|
3/1/2017 | $4,200 | No longer available |
2/20/2017 | $4,200 | Price decreased by 23% |
2/17/2017 | $5,450 | Listed by Bond New York |
3/19/2015 | $4,200 | |
2/17/2015 | $4,200 |
Past listing photos
Sign in to take a closer look at how this home compares to similar homes.
Explore Boerum Hill
Transit
| Location | Distance |
|---|---|
FGat Bergen St | 0.34 miles |
BDNQR2345at Atlantic Av–Barclays Ctr | 0.35 miles |
ACGat Hoyt & Schermerhorn | 0.38 miles |
Rat Union St | 0.41 miles |
2345at Nevins St | 0.44 miles |
About Boerum Hill
Rental prices shown are base rent before any fees. Visit listings for cost and fees breakdown.
SalesMedian asking price
2 beds
$1.49M
RentalsMedian asking base rent
2 beds
$5,265
Energetic and inviting, Boerum Hill continues its run as one of New York City's most desirable neighborhoods, all while remaining a secret quietly shared amongst its happy residents. Its appeal and vibrancy stem from its housing stock. Handsome Greek revival and Italianate townhouses line the wide, tree-lined streets. These beautiful brick and limestone buildings have long been a mecca for Brooklynites seeking an enclave close to Downtown Brooklyn and lower Manhattan — but far from crowds and highrises.
Main drags like Bergen Street, Atlantic Avenue, and Smith Street are peppered with charming boutiques like Collier West in addition to welcoming cafes, bars, and restaurants, including Rucola, French Louie, and Bacchus, to name a few. Fans of new construction will find new condo developments too. Saint Marks Place, The Hendrick, The Boerum, and The Bergen have expanded buyers' opportunities. Renters will also find plenty of options here in a broad range of prices, from the genuinely affordable to the luxurious.
Similar homes
Prices shown are base rent only and don't include any fees. Visit each listing to see a complete cost breakdown.
Similar Homes looks at ad spend and other factors like location, price, and number of beds and baths.







































































































































































