$12,500
For Rent
Base rent only. For total monthly price and additional fees, see .
Rented 9/9/2016
- ft²
10 rooms
7 beds
3.5 baths
Two-family home
- Fort Greene
Under NYC law, you can't be charged a broker fee if you didn't hire a broker.
Listed By
This home has been saved by 18 users.
Listing by Brown Harris Stevens, Real Estate Principal Office, 100 Fifth Avenue, New York, NY 10011 | MLS #: 15240768
Unavailable
Rented on 9/9/2016
Days on market
44 days
Last price change
No changes
About
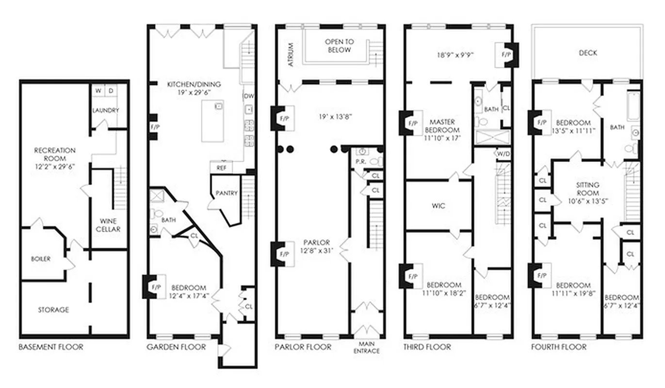
Private Home on Park Block
Located on the most picturesque block in Fort Greene with mature trees, 50 South Portland Avenue is a grand four-story townhouse. This architect-designed 7-bedroom, 3.5-bathroom home features a stunning glass atrium on the first two floors looking out to the private rear garden. The chef's kitchen is furnished with Wolf appliances and a large kitchen island for functional workspace.
Policies
Sorry, policy info isn’t available right now. Check back later.
Home features
Central air
Private outdoor space
Garden
Washer/dryer
Building amenities
Services and facilities
No info on services and facilities
Wellness and recreation
No info on wellness and recreation
Shared outdoor space
Deck
Roof deck
About the building
50 South Portland Avenue
50 South Portland Avenue, Brooklyn, NY 11217
1 unit
4 stories
1901 built
Property history
Prices shown are base rent only. For total monthly price and additional fees, see .
| Date | Base rent | Event |
|---|---|---|
11/24/2017 | $12,500 | Rented by Brown Harris Stevens |
9/9/2016 | $12,500 | No longer available |
7/27/2016 | $12,500 | Listed by Brown Harris Stevens |
Past listing photos
Sign in to take a closer look at how this home compares to similar homes.
Explore Fort Greene
Transit
| Location | Distance |
|---|---|
Gat Fulton St | under 500 feet |
Cat Lafayette Av | 0.12 miles |
BDNQR2345at Atlantic Av–Barclays Ctr | 0.24 miles |
2345at Nevins St | 0.27 miles |
LIRRat Atlantic Terminal | 0.32 miles |
About Fort Greene
Rental prices shown are base rent before any fees. Visit listings for cost and fees breakdown.
SalesMedian asking price
7 beds
$4.6M
With bustling flea markets, a world-renowned performance space, trendy boutiques, fabulous restaurants, and a rich literary and artistic tradition, Fort Greene attracts residents looking for a slower pace of living without sacrificing the vibrancy of urban life. Historic brownstones and row houses make up most of the available real estate, and it's common to find neighbors catching up on their stoops. Intense Brooklyn pride is in evidence on the main drag of Fulton Street, where a Notorious B.I.G. quote is painted on the side of a prominent building - "Spread love it's the Brooklyn way."
Learn more about Fort GreeneSimilar homes
Prices shown are base rent only and don't include any fees. Visit each listing to see a complete cost breakdown.
Similar Homes looks at ad spend and other factors like location, price, and number of beds and baths.






























































































































