$17,000
For Rent
Base rent only. For total monthly price and additional fees, see .
No longer available 11/8/2011
- ft²
11 rooms
5 beds
5+ baths
House
- Yorkville
Under NYC law, you can't be charged a broker fee if you didn't hire a broker.
Listed By
Halstead Real Estate
Listing by Halstead Real Estate | MLS #: 2218206
Unavailable
No longer available on 11/8/2011
Days on market
54 days
Last price change
No changes
About
New To Market
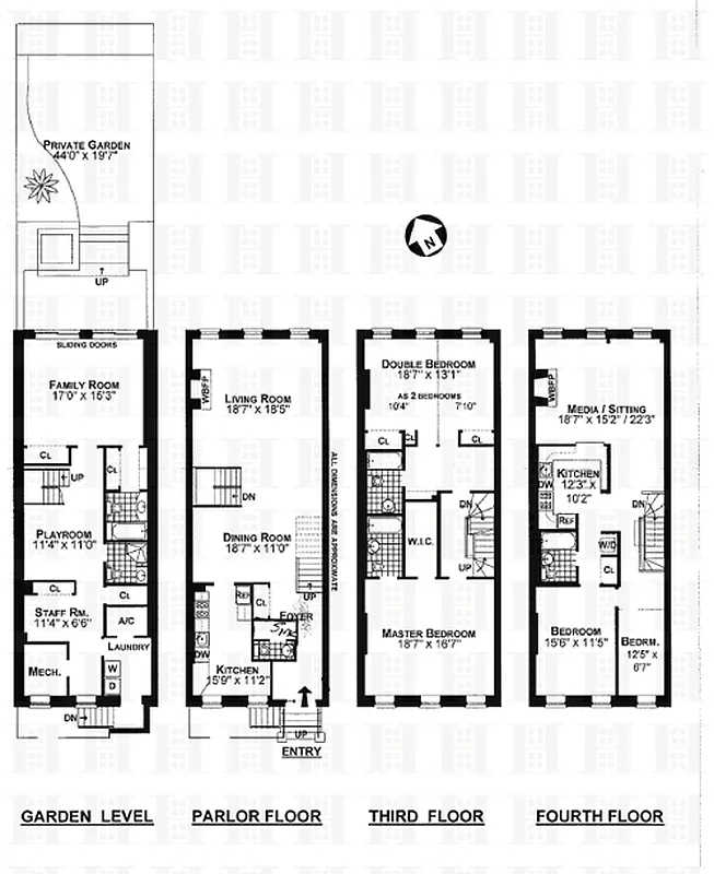
On a Beautiful Tree Lined Block Steps off Carl Shurz Park, this Stunning Twenty Foot Wide Four Story Townhouse Has Four Bedrooms Plus a Media Room/Guest Bedroom and Maids Room/Office. There are Five and One Half Bathrooms. The Parlor Floor Offers a Newly Renovated Kitchen, Living Room with Wood Burning Fireplace and Spacious Dining Area for Elegant Entertaining.
Policies
Sorry, policy info isn’t available right now. Check back later.
Home features
Private outdoor space
Garden
Washer/dryer
Building amenities
Services and facilities
Laundry in building
Storage space
Wellness and recreation
No info on wellness and recreation
Shared outdoor space
No info on shared outdoor space
About the building
509 East 84th Street
509 East 84th Street, New York, NY 10028
1 unit
3 stories
1901 built
Property history
Prices shown are base rent only. For total monthly price and additional fees, see .
| Date | Base rent | Event |
|---|---|---|
11/8/2011 | $17,000 | No longer available |
9/15/2011 | $17,000 | Listed by Halstead Real Estate |
9/13/2010 | $15,000 | Price decreased by 12% |
9/10/2010 | $16,995 | |
8/4/2010 | $16,995 | Price decreased by 1% |
Past listing photos
Sign in to take a closer look at how this home compares to similar homes.
Explore Yorkville
Transit
| Location | Distance |
|---|---|
Qat 86th St | 0.31 miles |
456at 86th St | 0.54 miles |
Qat 96th St | 0.59 miles |
6at 77th St | 0.64 miles |
Qat 72nd St | 0.7 miles |
About Yorkville
Rental prices shown are base rent before any fees. Visit listings for cost and fees breakdown.
SalesMedian asking price
5 beds
$7.64M
When George Washington commandeered the building site that would eventually become Gracie Mansion, he probably didn't imagine that this peaceful, riverside enclave would become the lively residential neighborhood it is today. Between then and now, Yorkville has seen a lot of change. Tony mansions and elevated trains went up at the turn of the century and then came down in the postwar years as a middle-class population moved in.
Now, the neighborhood is a haven of high-rise co-ops and condos interspersed with quiet rows of townhouses. The mixed housing stock makes Yorkville a practical choice for anyone seeking a slowed-down Manhattan vibe. Several avenues over from the throngs of Lexington and Third Avenues, Yorkville maintains a low-key, no-frills feel — it's a place where you'll find more diners and donut shops than upscale lounges and boutiques. This homey attitude is writ in its storefronts, where the food is kept simple and the owners are often from around the block.
Similar homes
Prices shown are base rent only and don't include any fees. Visit each listing to see a complete cost breakdown.
Similar Homes looks at ad spend and other factors like location, price, and number of beds and baths.








































































































































































































