View this home virtually
- ft²
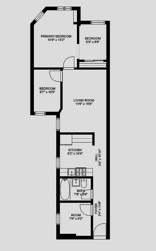
6 rooms
4 beds
1 bath
Co-op
- Hamilton Heights
Restricted sale
recorded sale
Sold on 12/11/2024
Verified by closing records
Last listed for $450,000
Seller's agent
This home has been saved by 216 users.
Listing by Oxford Property Group, Limited Liability Broker, 401 New Karner Road, Albany, NY 12205
Maintenance fees
$790/mo
Estimated payment
$3,326/mo
Legal disclaimerAll calculations are estimates provided by StreetEasy for informational purposes only. Actual amounts or financing terms may vary. Please contact your mortgage provider for specifics.Taxes
Included in maintenance fees
Tax abatement
No info
About
Seller’s agent
description
BACK ON THE MARKET
Hamilton Heights True 4 Bedroom ( currently used as a 3 bedroom )
Video tells the story
Only 2 flights – non elevator building
South and East Exposure
Faces the front of the building
Spacious Layout
10 ft Ceilings
Oversized Windows in all rooms
Washer/ Dryer in Unit
HDFC so limits do apply
Policies
Sorry, policy info isn’t available right now. Check back later.
Home features
Dishwasher
View
Park
Washer/dryer
Building amenities
No info on building amenities
About the building
511 West 138th Street
511 West 138th Street, New York, NY 10031
15 units
5 stories
1910 built
For sale
0 available units for saleFor rent
0 available units for rentDocuments and permits
View documents and permitsProperty history
- Price Change: No changes
- Days on market: 626 daysThis is the number of days the listing has been on StreetEasy.
| Date | Price | Event |
|---|---|---|
12/11/2024 | $447,500 | Sold by Oxford Property Group |
7/18/2024 | $450,000 | In contract |
3/31/2023 | $450,000 | Listed by Oxford Property Group |
1/18/2023 | $450,000 | In contract |
8/20/2022 | $450,000 | Listed by Oxford Property Group |
Past listing photos
Sign in to take a closer look at how this home compares to similar homes.
Explore Hamilton Heights
Transit
| Location | Distance |
|---|---|
1at 137th St–City College | 0.12 miles |
BCat 135th St | 0.28 miles |
1at 145th St | 0.34 miles |
ABCDat 145th St | 0.38 miles |
1at 125th St | 0.54 miles |



























































































