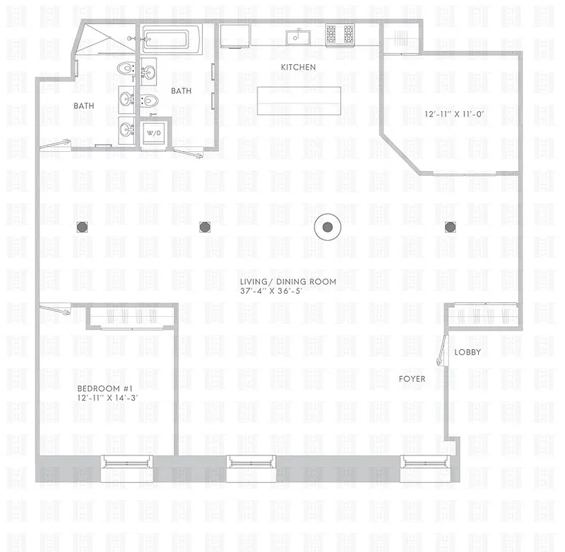
1,858 ft²
$1,616 per ft²
4 rooms
1 bed
2 baths
Condo
- Soho
recorded sale
Sold on 6/26/2017
Verified by closing records
Last listed for $2,888,000
Seller's agent
This home has been saved by 35 users.
Listing by Halstead Real Estate, 526 Warren Street, Hudson, NY 12534 | MLS #: 15751495
Common charges
$631/mo
Estimated payment
$16,378/mo
Legal disclaimerAll calculations are estimates provided by StreetEasy for informational purposes only. Actual amounts or financing terms may vary. Please contact your mortgage provider for specifics.Taxes
$834/mo
Tax abatement
No info
About
Seller’s agent
description
Contract Signed. Rare Soho Condo Loft
Move right into this dramatic 1,858 square foot one bedroom plus den loft located in a restored 19th-century building right in the heart of Soho's historic Cast-iron district! Enter to a grand-scaled Living/Dining room with soaring original tin-pressed ceilings, classic Corinthian columns, and bright afternoon light from enormous double-hung windows.
Policies
Sorry, policy info isn’t available right now. Check back later.
Home features
Central air
Dishwasher
Loft
Washer/dryer
Building amenities
Services and facilities
Elevator
Storage space
Wellness and recreation
No info on wellness and recreation
Shared outdoor space
Deck
Roof deck
About the building
54 Greene Street
54 Greene Street, New York, NY 10013
10 units
6 stories
1910 built
For sale
1 available units for saleFor rent
0 available units for rentDocuments and permits
View documents and permitsProperty history
- Price Change: No changes
- Days on market: 49 daysThis is the number of days the listing has been on StreetEasy.
| Date | Price | Event |
|---|---|---|
1/14/2022 | $0 | |
6/26/2017 | $3,003,837 | Sold by Halstead Real Estate |
8/10/2017 | $2,888,000 | No longer available |
7/6/2017 | $2,888,000 | In contract |
12/23/2016 | $2,888,000 | In contract |
Past listing photos
Sign in to take a closer look at how this home compares to similar homes.
Explore Soho
Transit
| Location | Distance |
|---|---|
JNQRWZ6at Canal St | 0.18 miles |
ACEat Canal St | 0.19 miles |
6at Spring St | 0.21 miles |
RWat Prince St | 0.23 miles |
1at Canal St | 0.24 miles |
About Soho
Rental prices shown are base rent before any fees. Visit listings for cost and fees breakdown.
SalesMedian asking price
1 bed
$1.88M
RentalsMedian asking base rent
1 bed
$4,250
SoHo has some of the best people-watching in Manhattan, as it is a mecca for the trendy, sophisticated downtown elite. The north-south running streets are often sites of fashion shoots as well as home to upscale European boutiques. The east-west running streets are busier and always clogged with vendors selling everything from iPhone cases to incense. One you hit Broadway, you could be in just about any mall in America with retail chains, tourists, teenagers, and disgruntled New Yorkers dominating the avenue. The energy in SoHo is fast-paced and all hustle and bustle; it is a quintessentially vibrant New York neighborhood, but certainly not for the faint-of-heart or those looking for some peace and quiet.
Learn more about Soho







































































































