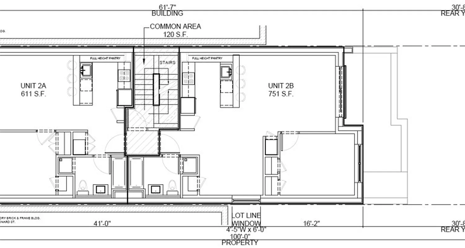
611 ft²
$1,274 per ft²
2 rooms
1 bed
1 bath
Rental unit
- Greenpoint
Sponsor unit
reported sale
Sold on 5/18/2020
Not yet verified by closing records
Seller's agents
This home has been saved by 33 users.
Listing by Belvedere Bridge Realty, LLC, Limited Liability Broker, 610 Manhattan Avenue, Brooklyn, NY 11222
Common charges
Not applicable
Estimated payment
$4,575/mo
Taxes
No info
Tax abatement
No info
About
Seller’s agent
description
THE LAST CONDO AVAILABLE AT BELVEDERE LXXXVIII . DON'T WAIT!!
A brand new one bedroom for sale in Greenpoint. This modern apartment has 10' ceilings, hardwood floors, and large windows .The kitchen features custom made, full height cabinetry, marble counter-tops and stainless steel appliances. The apartment is equipped with a washer and dryer, central AC and radiant heating.
Policies
Sorry, policy info isn’t available right now. Check back later.
Home features
Central air
Dishwasher
Hardwood floors
Washer/dryer
Building amenities
No info on building amenities
About the building
548 Leonard Street
548 Leonard Street, Brooklyn, NY 11222
7 units
4 stories
2018 built
For sale
0 available units for saleFor rent
0 available units for rentDocuments and permits
View documents and permitsProperty history
- Price Change: No changes
- Days on market: 90 days
| Date | Price | Event |
|---|---|---|
5/18/2020 | $779,000 | Sold by Belvedere Bridge Realty, LLC |
1/21/2020 | $779,000 | In contract |
1/3/2020 | $779,000 | Listed by Belvedere Bridge Realty, LLC |
11/14/2019 | $779,000 | Temporarily off market |
11/14/2019 | $779,000 | No longer available |
Past listing photos
Sign in to take a closer look at how this home compares to similar homes.
Explore Greenpoint
Transit
| Location | Distance |
|---|---|
Gat Nassau Av | under 500 feet |
Gat Greenpoint Av | 0.51 miles |
Lat Bedford Av | 0.58 miles |
GLat Lorimer St | 0.65 miles |
GLat Metropolitan Av | 0.67 miles |
About Greenpoint
Rental prices shown are base rent before any fees. Visit listings for cost and fees breakdown.
SalesMedian asking price
1 bed
$862K
RentalsMedian asking base rent
1 bed
$4,500
A former industrial and maritime neighborhood, Greenpoint was once primarily home to Polish and Irish immigrants and is now home to a large artist's community. The nightlife, restaurant and music scene have burgeoned in recent years as energy and activity in Williamsburg creeps north towards Greenpoint. As a result, the neighborhood's low-key, tucked-away vibe may not last for long, although poor access to public transportation may deter some new residents. Despite all the recent change, Greenpoint still hangs onto its rich history and an old-school community.
Learn more about Greenpoint












































































































