View this home virtually
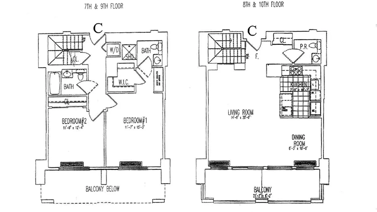
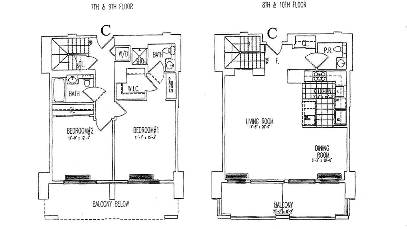
1,400 ft²
$927 per ft²
4 rooms
2 beds
2.5 baths
Condo
- Brighton Beach
Resale
reported sale
Sold on 8/21/2022
Not yet verified by closing records
Seller's agents
This home has been saved by 4 users.
Listing by Golden Real Corp., Corporate Broker, 415 Brighton Beach Avenue, Brooklyn, NY 11235
Common charges
$843/mo
Estimated payment
$3,489/mo
Legal disclaimerAll calculations are estimates provided by StreetEasy for informational purposes only. Actual amounts or financing terms may vary. Please contact your mortgage provider for specifics.Taxes
$540/mo
Tax abatement
No info
About
Seller’s agent
description
PROFESSIONAL PICTURE COMING SOON. Oceana Condominium - Fully renovated,Penthouse ( 9-10 floors)-Duplex 2 bedroom,2.5 bathroom (1.400 soft).Apartment for sale with beautiful furniture ,Luxury 12 story building in the gated Community with 24 hours security. Beautiful custom Open-Layout Kitchen (Neff Canada company), Marble Countertops and Sub-Zero refrigerator.Custom curtains.
Policies
Sorry, policy info isn’t available right now. Check back later.
Home features
Dishwasher
Private outdoor space
Balcony
View
City, Water
Building amenities
Services and facilities
Elevator
Wellness and recreation
Children's playroom
Gym
Swimming pool
Shared outdoor space
No info on shared outdoor space
About the building
55 Oceana Drive East
55 Oceana Drive East, Brooklyn, NY 11235
68 units
12 stories
2007 built
For sale
2 available units for saleFor rent
0 available units for rentDocuments and permits
View documents and permitsProperty history
- Price Change: ↓ $100,000 (-7.1%) on 4/6/22
- Days on market: 87 daysThis is the number of days the listing has been on StreetEasy.
| Date | Price | Event |
|---|---|---|
8/21/2022 | $1,299,000 | Sold by Golden Real Corp. |
5/25/2022 | $1,299,000 | In contract |
4/6/2022 | $1,299,000 | Price decreased by 7% |
2/27/2022 | $1,399,000 | Listed by Golden Real Corp. |
Past listing photos
Sign in to take a closer look at how this home compares to similar homes.
Explore Brighton Beach
Transit
| Location | Distance |
|---|---|
BQat Brighton Beach | 0.17 miles |
Qat Ocean Parkway | 0.56 miles |
BQat Sheepshead Bay | 0.59 miles |
FQat West 8th St–NY Aquarium | 0.94 miles |
Fat Neptune Av–Van Siclen | 0.94 miles |









































































































































































































































