$13,500
For Rent
Base rent only. For total monthly price and additional fees, see .
2,000 ft²
$81 per ft²
5 rooms
3 beds
2 baths
Rental unit
- Upper West Side
Under NYC law, you can't be charged a broker fee if you didn't hire a broker.
Listed By
This home has been saved by 6 users.
Listing by Sotheby's International Realty, Corporate Broker, 149 5th Avenue,, New York, NY 10010
Available
4/1/2026
Days on market
3 days
Last price change
No changes
About
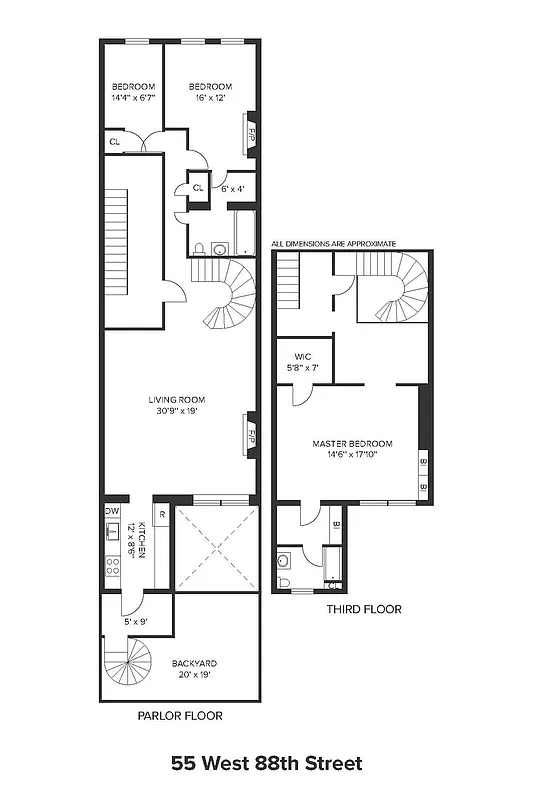
Absolutely gorgeous 2000+/- sqft parlor floor duplex apartment with private landscaped garden in very well kept 4 unit townhouse moments from Central Park West.
This grand 3 bedroom, 2 bath apartment features a floating staircase, woodburning fireplace in the living room, hardwood floors, high ceilings, and private garden.
Total renovation. Washer/Dryer in unit.
Must see.
Available April 1st.
Policies
Sorry, policy info isn’t available right now. Check back later.
Home features
Fireplace
Wood
Hardwood floors
Private outdoor space
Garden
Washer/dryer
Building amenities
Sorry, building amenities aren't available right now. Check back later.
About the building
55 West 88th Street
55 West 88th Street, New York, NY 10024
5 units
4 stories
1900 built
Property history
Prices shown are base rent only. For total monthly price and additional fees, see .
| Date | Base rent | Event |
|---|---|---|
1/23/2026 | $13,500 | Listed by Sotheby's International Realty |
2/27/2023 | $9,950 | |
11/28/2022 | $9,950 | |
10/13/2022 | $9,950 | |
9/17/2020 | $8,000 |
Past listing photos
Sign in to take a closer look at how this home compares to similar homes.
Explore Upper West Side
Transit
| Location | Distance |
|---|---|
BCat 86th St | 0.11 miles |
1at 86th St | 0.31 miles |
BCat 81st St–Museum of Natural History | 0.38 miles |
BCat 96th St | 0.39 miles |
123at 96th St | 0.39 miles |
About Upper West Side
Rental prices shown are base rent before any fees. Visit listings for cost and fees breakdown.
SalesMedian asking price
3 beds
$2.98M
RentalsMedian asking base rent
3 beds
$9,171
Sandwiched between two beautiful parks, the Upper West Side is one of the greenest spots in Manhattan. For that reason, it is a perennial favorite. The Upper West Side is relaxed, but never dull. There are plenty of low-key bars and restaurants to frequent along Amsterdam Avenue, and Broadway is an always-bustling commercial center. The wide, tree-lined streets still boast many mom-and-pop stores. Less posh than the Upper East Side, it is more easily accessible by public transportation, and real estate prices are just as, if not more, expensive.
Learn more about Upper West SideSimilar homes
Prices shown are base rent only and don't include any fees. Visit each listing to see a complete cost breakdown.
Similar Homes looks at ad spend and other factors like location, price, and number of beds and baths.














































































































































