$8,800
For Rent
Base rent only. For total monthly price and additional fees, see .
Rented 5/8/2024
1,771 ft²
$59 per ft²
6 rooms
3 beds
2 baths
Four-family home
- Park Slope
Under NYC law, you can't be charged a broker fee if you didn't hire a broker.
Listed By
This home has been saved by 24 users.
Listing by Corcoran, Limited Liability Broker, 125 Seventh Avenue, Brooklyn, NY 11215
Unavailable
Rented on 5/8/2024
Days on market
5 days
Last price change
↑ $300 (+3.3%) on 5/8/24
About
Available for July. Elegantly renovated home filled with light, just 1/2 block from Prospect Park and with access to enormous shared roof-deck with view of city skyline.
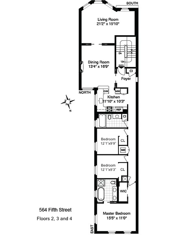
Step inside this landmark limestone building and be awed by the love and detail that went into designing this generous three bedroom, two bathroom home with full separate living room, dining room and kitchen.
Policies
Sorry, policy info isn’t available right now. Check back later.
Home features
Central air
Dishwasher
Fireplace
Decorative
Hardwood floors
View
City, Garden, Skyline
Washer/dryer
Building amenities
Services and facilities
Bike room
Storage space
Locker/cage
Wellness and recreation
No info on wellness and recreation
Shared outdoor space
Roof deck
About the building
564 5th Street
564 5th Street, Brooklyn, NY 11215
4 units
4 stories
1920 built
Property history
Prices shown are base rent only. For total monthly price and additional fees, see .
| Date | Base rent | Event |
|---|---|---|
5/8/2024 | $8,800 | Rented by Corcoran |
5/8/2024 | $8,800 | Price increased by 4% |
5/8/2024 | $8,500 | In contract |
5/7/2024 | $8,500 | Temporarily off market |
5/2/2024 | $8,500 | Listed by Corcoran |
Past listing photos
Sign in to take a closer look at how this home compares to similar homes.
Explore Park Slope
Transit
| Location | Distance |
|---|---|
Fat 7th Av | 0.17 miles |
Fat Prospect Park–15 St | 0.46 miles |
23at Grand Army Plaza | 0.59 miles |
FGRat 9th St | 0.63 miles |
Fat 4th Av | 0.67 miles |
About Park Slope
Rental prices shown are base rent before any fees. Visit listings for cost and fees breakdown.
SalesMedian asking price
3 beds
$2.4M
RentalsMedian asking base rent
3 beds
$6,200
Park Slope has a tranquil, easygoing vibe and can almost feel suburban. Strollers and children of all ages are a constant presence on sidewalks, as are shoppers patronizing local boutiques and dog walkers heading up to the park. Residents are Brooklynites through and through and tend to be socially conscious, artistically minded, and committed to their community. At night, a casual restaurant scene comes alive. For anyone looking for a night out, there are plenty of beer gardens and wine bars to patronize, especially in the South Slope, but don't go looking for dance clubs.
Learn more about Park SlopeSimilar homes
Prices shown are base rent only and don't include any fees. Visit each listing to see a complete cost breakdown.
Similar Homes looks at ad spend and other factors like location, price, and number of beds and baths.










































































































