$6,500
For Rent
Base rent only. For total monthly price and additional fees, see .
Rented 10/14/2025
1,750 ft²
$44 per ft²
5 rooms
4 beds
3 baths
Two-family home
- Bushwick
Under NYC law, you can't be charged a broker fee if you didn't hire a broker.
Listed By
Owner
This home has been saved by 20 users.
Listing by Owner
Unavailable
Rented on 10/14/2025
Days on market
22 days
Last price change
No changes
About
0.2mi from Kosciuszko J -- get into Manhattan in 20 mins!
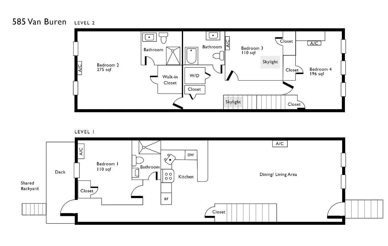
Recently renovated, huge 1,750 sqf sun drenched 4 bedrooms 3 bathrooms duplex, on beautiful tree lined street. Soaring 8'-10' ceilings throughout, with spacious bedrooms:
- Top floor rear bedroom is 275 sqf, with ensuite bathroom and walk-in closet
- Top floor front bedroom is 196 sqf
- Remainder two bedrooms each 110 sqf.
Ample storage and closet space throughout.
Policies
Sorry, policy info isn’t available right now. Check back later.
Home features
Central air
Dishwasher
Hardwood floors
Private outdoor space
Balcony, Garden
Washer/dryer
Building amenities
Services and facilities
Laundry in building
Wellness and recreation
No info on wellness and recreation
Shared outdoor space
Courtyard
About the building
585 Van Buren Street
585 Van Buren Street, Brooklyn, NY 11221
2 units
3 stories
1901 built
Property history
Prices shown are base rent only. For total monthly price and additional fees, see .
| Date | Base rent | Event |
|---|---|---|
10/14/2025 | $6,500 | Rented by Owner |
9/22/2025 | $6,500 | Listed by Owner |
10/21/2019 | $3,299 | |
2/15/2019 | $3,299 | |
2/7/2019 | $3,299 |
Past listing photos
Sign in to take a closer look at how this home compares to similar homes.
Explore Bushwick
Transit
| Location | Distance |
|---|---|
Jat Kosciusko St | under 500 feet |
JZat Gates Av | 0.23 miles |
Mat Central Av | 0.38 miles |
JMZat Myrtle Av | 0.58 miles |
Mat Knickerbocker Av | 0.59 miles |
About Bushwick
Rental prices shown are base rent before any fees. Visit listings for cost and fees breakdown.
SalesMedian asking price
4 beds
$1.45M
RentalsMedian asking base rent
4 beds
$4,497
Bushwick has seen a lot of change over the years. In the early 1900s, it was known for its thriving distilleries and breweries. After those industries declined, it experienced a long period of blight through the 1970s and 1980s. Now the neighborhood is seeing a renaissance, as artists pushed out of Williamsburg and elsewhere move in and raise property values. Bushwick offers unconventional living spaces: The housing market is full of converted lofts in old factories, sometimes with great access to outdoor space.
Learn more about BushwickSimilar homes
Prices shown are base rent only and don't include any fees. Visit each listing to see a complete cost breakdown.
Similar Homes looks at ad spend and other factors like location, price, and number of beds and baths.






















































































































































