View this home virtually
$1,495,000
For Sale
Delisted 10/24/2022
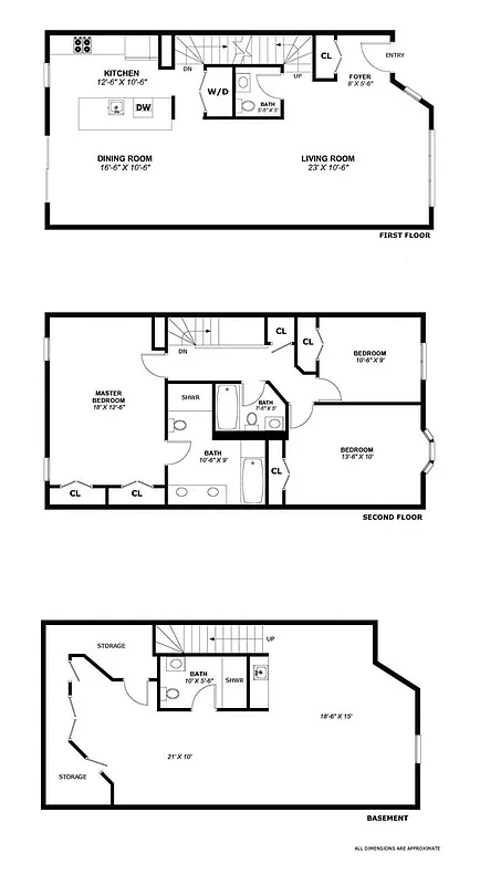
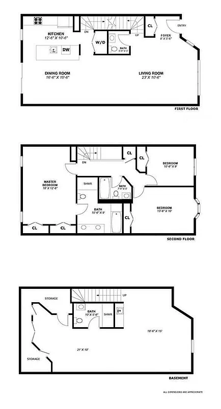
2,400 ft²
$622 per ft²
9 rooms
3 beds
3.5 baths
House
- Riverdale
Resale
Seller's agents
This home has been saved by 43 users.
Listing by Brown Harris Stevens, Real Estate Principal Office, 3531 Johnson Avenue, Riverdale, NY 10463
Common charges
Not applicable
Estimated payment
$8,409/mo
Legal disclaimerAll calculations are estimates provided by StreetEasy for informational purposes only. Actual amounts or financing terms may vary. Please contact your mortgage provider for specifics.Taxes
$919/mo
Tax abatement
No info
About
Seller’s agent
description
PRIVATE CUL-DE-SAC EUROPEAN-STYLE TOWNHOUSE IN A GATED PRIVATE COMMUNITY WITH COBBLE STONE COURT YARD built in 1992 is centrally located in Riverdale's most desired location.This unique townhouse boasts high-end finishes hard wood oak floors and a private outdoor patio. This triplex home features three bedrooms, 3.5-baths, finished full basement with guest room/den that can be used as an additional 4th bedroom with a full bathroom.
Policies
Sorry, policy info isn’t available right now. Check back later.
Home features
Central air
Private outdoor space
Garden
Building amenities
No info on building amenities
About the building
595 West 239th Street
595 West 239th Street, Bronx, NY 10463
1 unit
2 stories
1991 built
For sale
0 available units for saleFor rent
0 available units for rentDocuments and permits
View documents and permitsProperty history
- Price Change: No changes
- Days on market: 200 daysThis is the number of days the listing has been on StreetEasy.
| Date | Price | Event |
|---|---|---|
10/24/2022 | $1,495,000 | Delisted by Brown Harris Stevens |
4/7/2022 | $1,495,000 | Listed by Brown Harris Stevens |
1/4/2022 | $1,495,000 | |
9/21/2021 | $1,495,000 | Price decreased by 6% |
9/21/2021 | $1,595,000 |
Sign in to take a closer look at how this home compares to similar homes.
Explore Riverdale
Transit
| Location | Distance |
|---|---|
1at 238th St | 0.58 miles |
1at Van Cortlandt Park–242nd St | 0.6 miles |
1at 231st St | 0.77 miles |
1at Marble Hill–225th St | 1.06 miles |
4at Mosholu Parkway | 1.47 miles |
About Riverdale
Rental prices shown are base rent before any fees. Visit listings for cost and fees breakdown.
SalesMedian asking price
3 beds
$579K
RentalsMedian asking base rent
3 beds
$4,275
Riverdale was once a summer retreat for wealthy New Yorkers, who built large estates and Tudor-style mansions along the cliffs overlooking the Hudson River and the Palisades. Many of these properties still remain, which lends an upscale, polished atmosphere to the neighborhood's windy, tree-lined streets. Although certain pockets recall the tonier Westchester towns to the north, Riverdale is far more diverse. In addition to large single-family homes, Riverdale also features many co-op complexes, which offer more affordable housing options but the same easy, bucolic pace of life.
Learn more about Riverdale











































































































































































































































