$2,100
For Rent
Base rent only. For total monthly price and additional fees, see .
No longer available 5/10/2018
- ft²
3 rooms
1 bed
1 bath
Three-family home
- Windsor Terrace
Under NYC law, you can't be charged a broker fee if you didn't hire a broker.
Listed By
This home has been saved by 8 users.
Listing by Pomona Malone Inc, Corporate Broker, 15 West 39th Street, New York, NY 10018 | Brokerage Listing ID: 2350159
Searching with a housing voucher, like Section 8?
Unavailable
No longer available on 5/10/2018
Days on market
1 day
Last price change
No changes
About
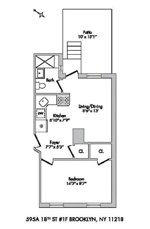
Brand New 1 Bedroom Home with Outdoor Space!
Spacious 1 bedroom apartment completely newly renovated. Large bedroom with very big closet and two huge windows. Spacious living room and kitchen. Kitchen has microwave, garbage disposal, dishwasher and a filtered water fridge. Beautiful bathroom with heated floors. Apartment has central air and heating that you control. Also has a private outdoor courtyard.
Policies
Sorry, policy info isn’t available right now. Check back later.
Home features
Dishwasher
Private outdoor space
Patio
Washer/dryer
Building amenities
Services and facilities
Laundry in building
Wellness and recreation
No info on wellness and recreation
Shared outdoor space
No info on shared outdoor space
About the building
595A 18th Street
595a 18th Street, Brooklyn, NY 11218
3 units
2 stories
1931 built
Property history
Prices shown are base rent only. For total monthly price and additional fees, see .
| Date | Base rent | Event |
|---|---|---|
5/10/2018 | $2,100 | No longer available |
5/9/2018 | $2,100 | Listed by Pomona Malone Inc |
3/23/2017 | $2,100 | |
3/1/2017 | $2,100 | Price decreased by 7% |
3/1/2017 | $2,100 |
Past listing photos
Sign in to take a closer look at how this home compares to similar homes.
Explore Windsor Terrace
Transit
| Location | Distance |
|---|---|
Fat Prospect Park–15 St | 0.24 miles |
Fat Fort Hamilton Parkway | 0.3 miles |
Fat 7th Av | 0.66 miles |
Fat Church Av | 0.75 miles |
BQat Church Av | 0.93 miles |
Similar homes
Prices shown are base rent only and don't include any fees. Visit each listing to see a complete cost breakdown.
Similar Homes looks at ad spend and other factors like location, price, and number of beds and baths.








































































