$2,375
For Rent
Base rent only. For total monthly price and additional fees, see .
Delisted 11/22/2020
- ft²
2 rooms
Studio
1 bath
Rental unit
- Midtown
Under NYC law, you can't be charged a broker fee if you didn't hire a broker.
Listed By
This home has been saved by 14 users.
Listing by Brown Harris Stevens, Real Estate Principal Office, 445 Park Avenue, New York, NY 10022
Searching with a housing voucher, like Section 8?
Unavailable
Delisted on 11/22/2020
Days on market
3 days
Last price change
No changes
About
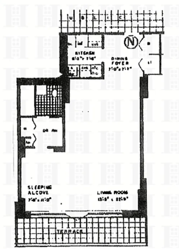
57th/5th HUGE TERRACE ALCOVE STUDIO
Billionaire's Row! Beautiful renovation of this huge (over 600 sf) alcove studio with large terrace. Sought after 57th Street location offers Central Park, Carnegie Hall, MOMA, Lincoln Center, world class shopping & dining, Mid-town convenience, and multiple mass transit options.
Policies
Sorry, policy info isn’t available right now. Check back later.
Home features
Private outdoor space
Terrace
Building amenities
Services and facilities
Doorman
Elevator
Wellness and recreation
No info on wellness and recreation
Shared outdoor space
No info on shared outdoor space
About the building
60 West 57th Street
60 West 57th Street, New York, NY 10019
242 units
20 stories
1963 built
Property history
Prices shown are base rent only. For total monthly price and additional fees, see .
| Date | Base rent | Event |
|---|---|---|
11/22/2020 | $2,375 | Delisted by Brown Harris Stevens |
11/19/2020 | $2,375 | Listed by Brown Harris Stevens |
9/21/2020 | $3,025 | |
9/18/2020 | $3,025 | |
9/14/2020 | $3,025 |
Sign in to take a closer look at how this home compares to similar homes.
Explore Midtown
Transit
| Location | Distance |
|---|---|
Fat 57th St | under 500 feet |
NRat 59th St | 0.16 miles |
NRWat 57th St–7th Av | 0.18 miles |
BDEat 7th Av | 0.24 miles |
EMat 5th Av–53rd St | 0.24 miles |
About Midtown
Rental prices shown are base rent before any fees. Visit listings for cost and fees breakdown.
SalesMedian asking price
Studio
$700K
RentalsMedian asking base rent
Studio
$4,000
If you're looking for a neighborhood with tree-lined streets and quaint coffee shops, Midtown isn't it. The neighborhood is more of a center for business than a residential community, but it puts everything close at hand for those who dwell here. Skyscrapers rise above congested streets, tourists flock to Broadway shows and Times Square, and thousands of commuters pass through Grand Central Terminal, Pennsylvania Station, and the Port Authority Bus Terminal every day.
The real estate options in Midtown can be diverse; surprisingly affordable apartments can be found alongside some of the city's most expensive properties. The headquarters of many global corporations line Sixth Avenue, while Fifth Avenue is an upscale retail destination with stores from some of the world's best-known brands.
Similar homes
Prices shown are base rent only and don't include any fees. Visit each listing to see a complete cost breakdown.
Similar Homes looks at ad spend and other factors like location, price, and number of beds and baths.









































































