View this home virtually
$4,995
For Rent
Base rent only. For total monthly price and additional fees, see .
Rented 4/18/2024
1,600 ft²
$37 per ft²
5 rooms
2 beds
1.5 baths
Rental unit
- Morningside Heights
Under NYC law, you can't be charged a broker fee if you didn't hire a broker.
Listed By
This home has been saved by 18 users.
Listing by Oxford Property Group, Limited Liability Broker, 401 New Karner Road, Albany, NY 12205
Unavailable
Rented on 4/18/2024
Days on market
4 days
Last price change
No changes
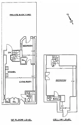
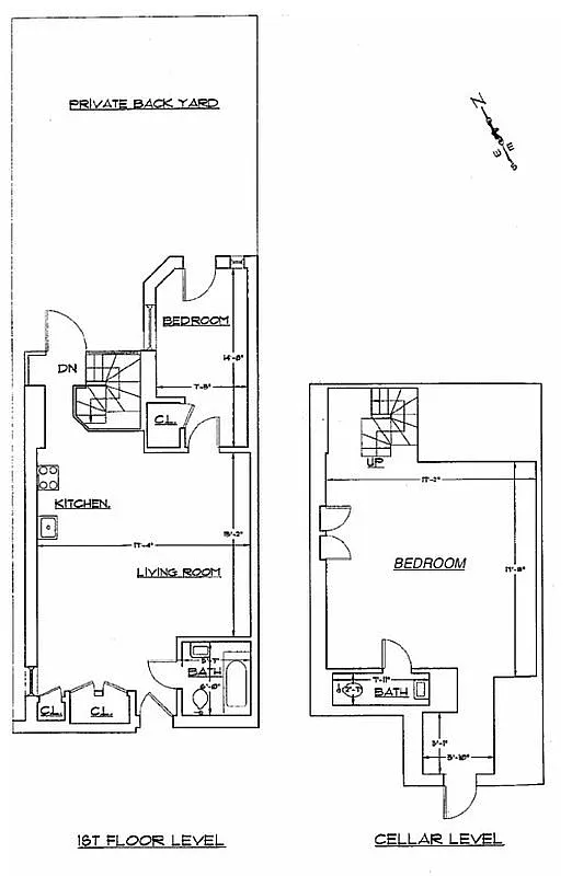
About
GARDEN DUPLEX STEPS TO RIVERSIDE PARK
Imagine renting a rare duplex with your very own private garden, minutes from Columbia University and steps from Riverside Park and Drive! This garden duplex apartment is fully renovated: from hardwood floors, to new appliances in the kitchen, and sparkling bathroom finishes. The square footage represents the indoor and outdoor space.
Policies
Sorry, policy info isn’t available right now. Check back later.
Home features
Dishwasher
Hardwood floors
Private outdoor space
Balcony, Garden, Terrace
View
City, Garden, Skyline
Washer/dryer
Building amenities
No info on building amenities
About the building
627 West 113th Street
627 West 113th Street, New York, NY 10025
10 units
5 stories
1910 built
Property history
Prices shown are base rent only. For total monthly price and additional fees, see .
| Date | Base rent | Event |
|---|---|---|
4/18/2024 | $4,995 | Rented by Oxford Property Group |
4/15/2024 | $4,995 | In contract |
4/11/2024 | $4,995 | Listed by Oxford Property Group |
4/17/2023 | $4,995 | |
3/29/2023 | $4,995 |
Past listing photos
Sign in to take a closer look at how this home compares to similar homes.
Explore Morningside Heights
Transit
| Location | Distance |
|---|---|
1at 116th St–Columbia University | 0.17 miles |
1at Cathedral Parkway–110th St | 0.17 miles |
1at 103rd St | 0.53 miles |
BCat Cathedral Parkway–110th St | 0.6 miles |
BCat 116th St | 0.6 miles |
About Morningside Heights
Rental prices shown are base rent before any fees. Visit listings for cost and fees breakdown.
SalesMedian asking price
2 beds
$949K
RentalsMedian asking base rent
2 beds
$6,137
In many ways, Morningside Heights reminds of Park Slope or the nearby Upper West Side, especially in its ample green space, shady streets, and laid-back, homey feel. What sets Morningside Heights apart, however, is the number of colleges and universities in and near the area.
Learn more about Morningside HeightsSimilar homes
Prices shown are base rent only and don't include any fees. Visit each listing to see a complete cost breakdown.
Similar Homes looks at ad spend and other factors like location, price, and number of beds and baths.











































































































































































































































































