$7,895
For Rent
Base rent only. For total monthly price and additional fees, see .
Rented 10/15/2020
1,826 ft²
$51 per ft²
6 rooms
3 beds
2.5 baths
Two-family home
- Park Slope
Under NYC law, you can't be charged a broker fee if you didn't hire a broker.
Listed By
This home has been saved by 52 users.
Listing by Compass, Corporate Broker, 110 5th Avenue, New York, NY 10011
Unavailable
Rented on 10/15/2020
Days on market
11 days
Last price change
No changes
About
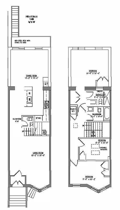
Gut-renovated in 2018, this mint-condition 3-bedroom, 2.5-bathroom owner's duplex in a Park Slope brownstone is your ideal urban sanctuary. Enjoy exclusive access to the stunning 16' x 35' planted back yard with automatic irrigation system as well as a private dining terrace adjacent to the kitchen. Spanning the parlor level and second floor of a thoughtfully and meticulously reimagined brownstone, this home offers an elevated Park Slope living experience.
Policies
Sorry, policy info isn’t available right now. Check back later.
Home features
Central air
Dishwasher
Hardwood floors
Private outdoor space
Balcony, Garden
Washer/dryer
Building amenities
Services and facilities
Laundry in building
Wellness and recreation
No info on wellness and recreation
Shared outdoor space
Courtyard
About the building
666 Degraw Street
666 Degraw Street, Brooklyn, NY 11217
2 units
2 stories
1899 built
Property history
Prices shown are base rent only. For total monthly price and additional fees, see .
| Date | Base rent | Event |
|---|---|---|
10/15/2020 | $7,895 | Rented by Compass |
10/12/2020 | $7,895 | In contract |
10/1/2020 | $7,895 | Listed by Compass |
Past listing photos
Sign in to take a closer look at how this home compares to similar homes.
Explore Park Slope
Transit
| Location | Distance |
|---|---|
Rat Union St | 0.1 miles |
23at Bergen St | 0.37 miles |
BDNQR2345at Atlantic Av–Barclays Ctr | 0.42 miles |
BQat 7th Av | 0.48 miles |
LIRRat Atlantic Terminal | 0.49 miles |
About Park Slope
Rental prices shown are base rent before any fees. Visit listings for cost and fees breakdown.
SalesMedian asking price
3 beds
$2.35M
RentalsMedian asking base rent
3 beds
$6,000
Park Slope has a tranquil, easygoing vibe and can almost feel suburban. Strollers and children of all ages are a constant presence on sidewalks, as are shoppers patronizing local boutiques and dog walkers heading up to the park. Residents are Brooklynites through and through and tend to be socially conscious, artistically minded, and committed to their community. At night, a casual restaurant scene comes alive. For anyone looking for a night out, there are plenty of beer gardens and wine bars to patronize, especially in the South Slope, but don't go looking for dance clubs.
Learn more about Park SlopeSimilar homes
Prices shown are base rent only and don't include any fees. Visit each listing to see a complete cost breakdown.
Similar Homes looks at ad spend and other factors like location, price, and number of beds and baths.






















































































































