View this home virtually
$3,700
For Rent
Base rent only. For total monthly price and additional fees, see .
Delisted 7/21/2025
- ft²
6 rooms
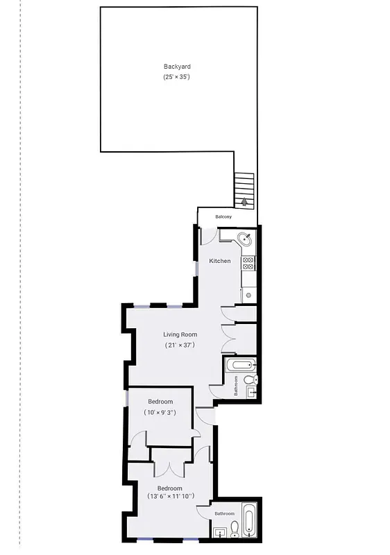
2 beds
2 baths
Two-family home
- Bushwick
Under NYC law, you can't be charged a broker fee if you didn't hire a broker.
Listed By
This home has been saved by 10 users.
Listing by LANCIANO PIZANTE, Real Estate Principal Office, 2329 Nostrand Avenue, Brooklyn, NY 11210-3948
Unavailable
Delisted on 7/21/2025
Days on market
18 days
Last price change
↓ $100 (-2.6%) on 7/17/25
About
Comftable, Bright & Modern 2BR/2BA apartment with Private Backyard in Prime Bushwick
Welcome to your new home on a quiet, tree-lined street in Bushwick! This spacious apartment is part of a fully updated three-family building, finished with condo-level details throughout.
✨ 2 bedrooms, 2 full bathrooms
✨ Primary bedroom with en-suite bath & large closets
✨ Open, sunlit living area with hardwood floors
✨...
Policies
Sorry, policy info isn’t available right now. Check back later.
Home features
Hardwood floors
Private outdoor space
Garden
Washer/dryer
Building amenities
No info on building amenities
About the building
69 Woodbine Street
69 Woodbine Street, Brooklyn, NY 11221
2 units
2 stories
1915 built
Property history
Prices shown are base rent only. For total monthly price and additional fees, see .
| Date | Base rent | Event |
|---|---|---|
7/21/2025 | $3,700 | Delisted by LANCIANO PIZANTE |
7/17/2025 | $3,700 | Price decreased by 3% |
7/9/2025 | $3,800 | Price decreased by 5% |
7/3/2025 | $3,995 | Listed by LANCIANO PIZANTE |
3/13/2022 | $2,950 |
Past listing photos
Sign in to take a closer look at how this home compares to similar homes.
Explore Bushwick
Transit
| Location | Distance |
|---|---|
JZat Gates Av | 0.23 miles |
Jat Halsey St | 0.37 miles |
Jat Kosciusko St | 0.5 miles |
Mat Knickerbocker Av | 0.54 miles |
Mat Central Av | 0.63 miles |
About Bushwick
Rental prices shown are base rent before any fees. Visit listings for cost and fees breakdown.
SalesMedian asking price
2 beds
$923.29K
RentalsMedian asking base rent
2 beds
$3,395
Bushwick has seen a lot of change over the years. In the early 1900s, it was known for its thriving distilleries and breweries. After those industries declined, it experienced a long period of blight through the 1970s and 1980s. Now the neighborhood is seeing a renaissance, as artists pushed out of Williamsburg and elsewhere move in and raise property values. Bushwick offers unconventional living spaces: The housing market is full of converted lofts in old factories, sometimes with great access to outdoor space.
Learn more about BushwickSimilar homes
Prices shown are base rent only and don't include any fees. Visit each listing to see a complete cost breakdown.
Similar Homes looks at ad spend and other factors like location, price, and number of beds and baths.















































































































