$3,999,999
For Sale
No longer available 1/6/2013
4,803 ft²
$832 per ft²
2 rooms
Studio
0 baths
Commercial building
- Chinatown
Seller's agent
Miriam S Sirota
Brown Harris Stevens
This home has been saved by 19 users.
Listing by Brown Harris Stevens, Real Estate Principal Office | MLS #: 3429375
Common charges
Not applicable
Estimated payment
$19,703/mo
Legal disclaimerAll calculations are estimates provided by StreetEasy for informational purposes only. Actual amounts or financing terms may vary. Please contact your mortgage provider for specifics.Taxes
No info
Tax abatement
No info
About
Seller’s agent
description
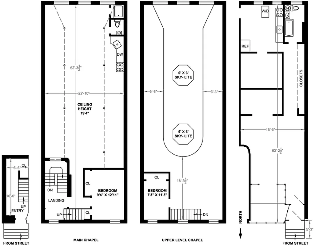
Built in 1900, this 3 story building with two apartments, one with a store front and basement, was the first Roumanian Synagogue in New York. After the congregation moved to a new location, 70 Hester went through a number of uses, including a speak-easy. This commercially zoned building offers many opportunities. Located outside of the historical district, zoned C6-2, the max allowed FAR is 6.
Policies
Sorry, policy info isn’t available right now. Check back later.
Home features
No info on home features
Building amenities
No info on building amenities
About the building
70 Hester Street
70 Hester Street, New York, NY 10002
- units
3 stories
1900 built
For sale
0 available units for saleFor rent
0 available units for rentDocuments and permits
View documents and permitsProperty history
- Price Change: ↓ $500,000 (-11.1%) on 11/13/12
- Days on market: 114 daysThis is the number of days the listing has been on StreetEasy.
| Date | Price | Event |
|---|---|---|
1/6/2013 | $3,999,999 | No longer available |
11/13/2012 | $3,999,999 | Price decreased by 11% |
10/5/2012 | $4,499,999 | Price decreased by 8% |
9/14/2012 | $4,900,000 | Listed by Brown Harris Stevens |
Sign in to take a closer look at how this home compares to similar homes.
Explore Chinatown
Transit
| Location | Distance |
|---|---|
Fat East Broadway | 0.14 miles |
BDat Grand St | 0.18 miles |
FJMZat Delancey St | 0.23 miles |
FJMZat Essex St | 0.28 miles |
JZat Bowery | 0.3 miles |





































































































































































































































