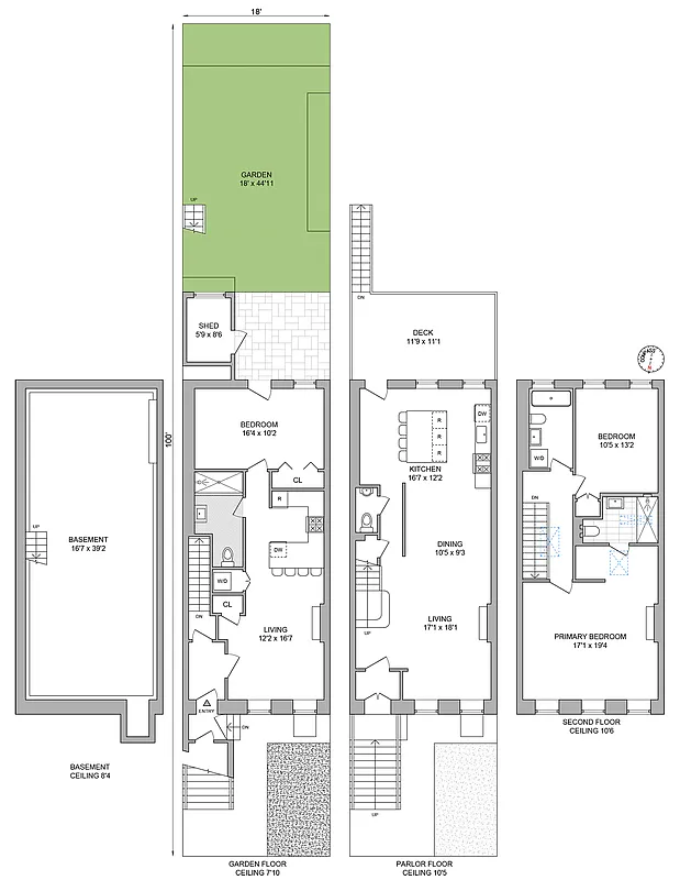
2,430 ft²
$967 per ft²
8 rooms
3 beds
3.5 baths
Two-family home
- Stuyvesant Heights
Resale
reported sale
Sold on 9/12/2025
Not yet verified by closing records
Seller's agents
This home has been saved by 51 users.
Listing by Compass, Corporate Broker, 110 5th Avenue, New York, NY 10011
Common charges
Not applicable
Estimated payment
$13,554/mo
Legal disclaimerAll calculations are estimates provided by StreetEasy for informational purposes only. Actual amounts or financing terms may vary. Please contact your mortgage provider for specifics.Taxes
$186/mo
Tax abatement
No info
About
Seller’s agent
description
A townhome like no other! Welcome to 726 Macon Avenue, the most gorgeous townhouse on one of the greenest blocks in Brooklyn. Originally built at the turn of the century, this handsome home has been impeccably renovated with the utmost attention and care. With a nod to its history, this home has a perfect mix of original details, while refinished with modern touches that have been thoughtfully chosen throughout.
Policies
Sorry, policy info isn’t available right now. Check back later.
Home features
Central air
Dishwasher
Fireplace
Decorative
Hardwood floors
Private outdoor space
Garden
View
Garden
Washer/dryer
Building amenities
No info on building amenities
About the building
726 Macon Street
726 Macon Street, Brooklyn, NY 11233
2 units
2 stories
1899 built
For sale
0 available units for saleFor rent
0 available units for rentDocuments and permits
View documents and permitsProperty history
- Price Change: No changes
- Days on market: 14 daysThis is the number of days the listing has been on StreetEasy.
| Date | Price | Event |
|---|---|---|
9/12/2025 | $2,350,000 | Sold by Compass |
6/20/2025 | $2,350,000 | In contract |
6/6/2025 | $2,350,000 | Listed by Compass |
6/25/2014 | $900,000 | |
2/4/2016 | $849,900 |
Past listing photos
Sign in to take a closer look at how this home compares to similar homes.
Explore Stuyvesant Heights
Transit
| Location | Distance |
|---|---|
Jat Halsey St | 0.33 miles |
ACat Ralph Av | 0.34 miles |
JZat Gates Av | 0.42 miles |
ACat Utica Av | 0.53 miles |
JZat Chauncey St | 0.55 miles |
























































































































































