- ft²
13 rooms
7 beds
2 baths
Two-family home
- Glendale
recorded sale
Sold on 8/1/2017
Verified by closing records
Last listed for $795,000
Seller's agent
This home has been saved by 17 users.
Listing by Halstead Real Estate, 110 5th Avenue, New York, NY 10011 | MLS #: 16552916
Common charges
Not applicable
Estimated payment
$3,947/mo
Legal disclaimerAll calculations are estimates provided by StreetEasy for informational purposes only. Actual amounts or financing terms may vary. Please contact your mortgage provider for specifics.Taxes
No info
Tax abatement
No info
About
Seller’s agent
description
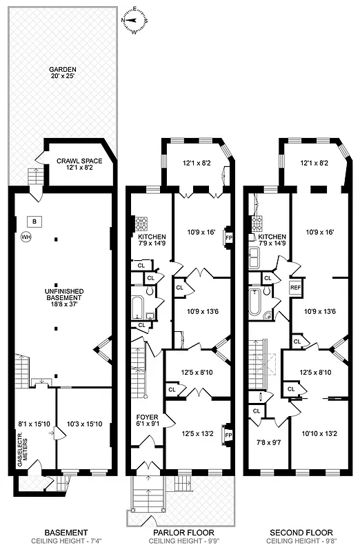
Contract Signed. 2 Family 1900s Brick Rowhouse
Bring your dreams and your contractor! Exceptionally large legal 2 Family used as a Single Family loaded with character and original details. Yellow brick facade, tin cornice, exterior brownstone stoop and trim, iron scroll fence, decorative fireplaces, plaster ceilings and walls, lighting fixtures, pocket doors and hardware, farmhouse sink and claw foot tub.
Policies
Sorry, policy info isn’t available right now. Check back later.
Home features
Private outdoor space
Garden
Building amenities
No info on building amenities
About the building
74-37 64th Place
74-37 64th Place, Ridgewood, NY 11385
2 units
2 stories
1901 built
For sale
0 available units for saleFor rent
0 available units for rentDocuments and permits
View documents and permitsProperty history
- Price Change: No changes
- Days on market: 41 daysThis is the number of days the listing has been on StreetEasy.
| Date | Price | Event |
|---|---|---|
12/20/2023 | $835,206 | |
8/1/2017 | $775,000 | Sold by Halstead Real Estate |
8/1/2017 | $795,000 | No longer available |
5/31/2017 | $795,000 | In contract |
4/20/2017 | $795,000 | Listed by Halstead Real Estate |
Past listing photos
Sign in to take a closer look at how this home compares to similar homes.
Explore Glendale
Transit
| Location | Distance |
|---|---|
Mat Fresh Pond Rd | 0.53 miles |
Mat Forest Av | 0.7 miles |
Lat Halsey St | 0.74 miles |
Mat Metropolitan Av | 0.89 miles |
Mat Seneca Av | 0.9 miles |




































































































































