6,120 ft²
$1,388 per ft²
20 rooms
7 beds
8+ baths
Mixed-use building
- Kips Bay
reported sale
Sold on 11/24/2015
Not yet verified by closing records
Seller's agents
This home has been saved by 5 users.
Listing by Douglas Elliman, Limited Liability Broker, 401 New Karner Road, Albany, NY 12205 | Brokerage Listing ID: 2152612
Common charges
Not applicable
Estimated payment
$51,402/mo
Legal disclaimerAll calculations are estimates provided by StreetEasy for informational purposes only. Actual amounts or financing terms may vary. Please contact your mortgage provider for specifics.Taxes
$7,492/mo
Tax abatement
No info
About
Seller’s agent
description
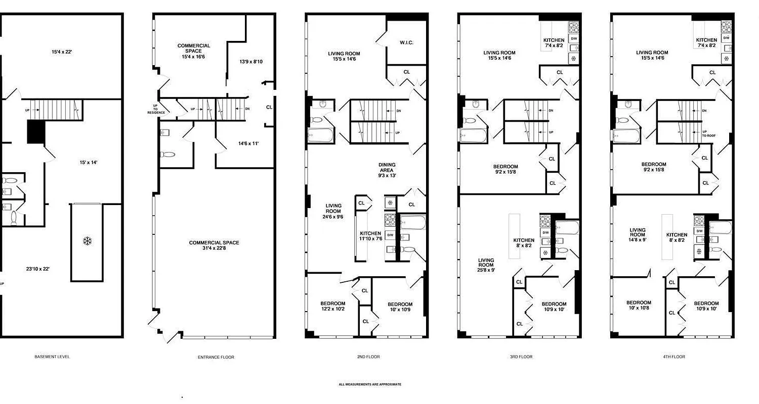
Gramercy prime location mixed-use 4-story, 6120 SF building with full cellar for sale at the corner of Lexington Avenue and 26th street. The building will be delivered vacant. The first floor features two commercial spaces previously used as restaurants. The second floor is a rare 3 bedroom, 2 bathroom rental unit with a recently upgraded kitchen and the third and fourth floors each contain two 1 BR/1BA apartments.
Policies
Sorry, policy info isn’t available right now. Check back later.
Home features
No info on home features
Building amenities
No info on building amenities
About the building
77 Lexington Avenue
77 Lexington Avenue, New York, NY 10010
5 units
4 stories
1910 built
For sale
0 available units for saleFor rent
0 available units for rentDocuments and permits
View documents and permitsProperty history
- Price Change: ↓ $500,000 (-5.6%) on 8/11/15
- Days on market: 104 daysThis is the number of days the listing has been on StreetEasy.
| Date | Price | Event |
|---|---|---|
12/30/2015 | $8,500,000 | Sold by Douglas Elliman |
11/24/2015 | $8,500,000 | No longer available |
10/5/2015 | $8,500,000 | In contract |
8/11/2015 | $8,500,000 | Price decreased by 6% |
6/30/2015 | $9,000,000 | Listed by Douglas Elliman |
Past listing photos
Sign in to take a closer look at how this home compares to similar homes.
Explore Kips Bay
Transit
| Location | Distance |
|---|---|
6at 28th St | 0.14 miles |
6at 23rd St | 0.16 miles |
RWat 23rd St | 0.3 miles |
6at 33rd St | 0.31 miles |
RWat 28th St | 0.38 miles |


























































































































































































