- ft²
4 rooms
1 bed
1 bath
Co-op
- Jackson Heights
Resale
reported sale
Sold on 9/20/2025
Not yet verified by closing records
Seller's agent
This home has been saved by 33 users.
Listing by EXP Realty NYC, Real Estate Principal Office, 68-56 Groton Street, Forest Hills, NY 11375
Maintenance fees
$838/mo
Estimated payment
$2,987/mo
Legal disclaimerAll calculations are estimates provided by StreetEasy for informational purposes only. Actual amounts or financing terms may vary. Please contact your mortgage provider for specifics.Taxes
Included in maintenance fees
Tax abatement
No info
About
Seller’s agent
description
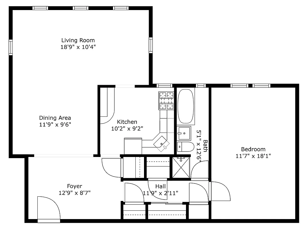
Spacious Jr4 layout with endless potential!
This sun-filled apartment boasts large windows throughout, offering abundant natural light. With some TLC, you can re-imagine the space to suit your lifestyle—enjoy it as an oversized one-bedroom or close off the separate dining room to create a second room. The bathroom is equipped with both a tub and a shower, providing versatility and comfort.
Policies
Sorry, policy info isn’t available right now. Check back later.
Home features
Hardwood floors
Private outdoor space
Roof deck
Building amenities
Services and facilities
Laundry in building
Live-in super
Parking
Garage
Storage space
Locker/cage
Wheelchair access
Wellness and recreation
No info on wellness and recreation
Shared outdoor space
Roof deck
About the building
77-11 35th Avenue
77-11 35th Avenue, Jackson Heights, NY 11372
97 units
6 stories
1941 built
For sale
0 available units for saleFor rent
0 available units for rentDocuments and permits
View documents and permitsProperty history
- Price Change: ↑ $30,000 (+6.6%) on 4/18/25
- Days on market: 132 daysThis is the number of days the listing has been on StreetEasy.
| Date | Price | Event |
|---|---|---|
9/21/2025 | $425,000 | Sold by EXP Realty NYC |
9/20/2025 | $425,000 | No longer available |
5/7/2025 | $425,000 | In contract |
4/18/2025 | $425,000 | Price increased by 8% |
4/10/2025 | $395,000 | Listed by EXP Realty NYC |
Past listing photos
Sign in to take a closer look at how this home compares to similar homes.
Explore Jackson Heights
Transit
| Location | Distance |
|---|---|
EFMR7at Broadway–74th St | 0.34 miles |
EFMR7at Jackson Heights–Roosevelt Ave | 0.35 miles |
7at 82nd St–Jackson Heights | 0.37 miles |
MRat 65th St | 0.47 miles |
7at Fisk Av–69th St | 0.52 miles |
About Jackson Heights
Rental prices shown are base rent before any fees. Visit listings for cost and fees breakdown.
SalesMedian asking price
1 bed
$329.99K
RentalsMedian asking base rent
1 bed
$2,397
As prices continue to rise in Brooklyn, many New Yorkers are looking at the Queens neighborhood of Jackson Heights for its relatively affordable prices and manageable commutes to Manhattan. The subway line once described as the "cornfield route" can now get residents to Midtown in 20-30 minutes, while other lines ferry riders to the East Side of Manhattan in less than 15 minutes. The neighborhood boasts an eclectic mix of architectural styles, cuisines, traditions and peoples, and will appeal to anyone with a cosmopolitan frame of mind.
Learn more about Jackson Heights

















































































































