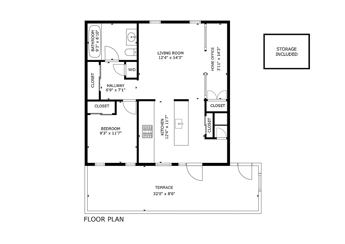
786 ft²
$1,208 per ft²
1 room
1 bed
1 bath
Condo
- Boerum Hill
Resale
recorded sale
Sold on 10/15/2025
Verified by closing records
Last listed for $895,000
Seller's agent
This home has been saved by 81 users.
Listing by Prevu Real Estate, LLC, Limited Liability Broker, 155 Water Street, Brooklyn, NY 11201
Common charges
$618/mo
Estimated payment
$7,212/mo
Legal disclaimerAll calculations are estimates provided by StreetEasy for informational purposes only. Actual amounts or financing terms may vary. Please contact your mortgage provider for specifics.Taxes
$1,370/mo
Tax abatement
No info
About
Seller’s agent
description
*Spacious 1BR with Private Garden & Bonus Room*
Welcome to Unit 1B at Eight St. Marks Place — a thoughtfully designed, oversized one-bedroom residence offering seamless indoor-outdoor living.
Enter through a private courtyard into a gracious foyer that opens to a sleek, open-concept living and dining area. Wide-plank oak flooring lend the home a sense of calm sophistication, while west-facing windows bring in natural light throughout the day.
Policies
Sorry, policy info isn’t available right now. Check back later.
Home features
Central air
Dishwasher
Hardwood floors
Private outdoor space
Garden, Terrace
View
Garden
Washer/dryer
Building amenities
Services and facilities
Bike room
Doorman
Virtual
Elevator
Storage space
Locker/cage
Wellness and recreation
No info on wellness and recreation
Shared outdoor space
Roof deck
About the building
8 Saint Marks Place
8 Saint Marks Place, Brooklyn, NY 11217
13 units
8 stories
2019 built
For sale
0 available units for saleFor rent
0 available units for rentDocuments and permits
View documents and permitsProperty history
- Price Change: No changes
- Days on market: 43 daysThis is the number of days the listing has been on StreetEasy.
| Date | Price | Event |
|---|---|---|
10/15/2025 | $949,999 | Sold by Prevu Real Estate, LLC |
7/30/2025 | $895,000 | In contract |
6/17/2025 | $895,000 | Listed by Prevu Real Estate, LLC |
9/2/2021 | $795,000 | |
9/2/2021 | $795,000 |
Past listing photos
Sign in to take a closer look at how this home compares to similar homes.
Explore Boerum Hill
Transit
| Location | Distance |
|---|---|
BDNQR2345at Atlantic Av–Barclays Ctr | 0.2 miles |
LIRRat Atlantic Terminal | 0.35 miles |
Rat Union St | 0.37 miles |
23at Bergen St | 0.38 miles |
2345at Nevins St | 0.39 miles |
About Boerum Hill
Rental prices shown are base rent before any fees. Visit listings for cost and fees breakdown.
SalesMedian asking price
1 bed
$1.13M
RentalsMedian asking base rent
1 bed
$4,250
Energetic and inviting, Boerum Hill continues its run as one of New York City's most desirable neighborhoods, all while remaining a secret quietly shared amongst its happy residents. Its appeal and vibrancy stem from its housing stock. Handsome Greek revival and Italianate townhouses line the wide, tree-lined streets. These beautiful brick and limestone buildings have long been a mecca for Brooklynites seeking an enclave close to Downtown Brooklyn and lower Manhattan — but far from crowds and highrises.
Main drags like Bergen Street, Atlantic Avenue, and Smith Street are peppered with charming boutiques like Collier West in addition to welcoming cafes, bars, and restaurants, including Rucola, French Louie, and Bacchus, to name a few. Fans of new construction will find new condo developments too. Saint Marks Place, The Hendrick, The Boerum, and The Bergen have expanded buyers' opportunities. Renters will also find plenty of options here in a broad range of prices, from the genuinely affordable to the luxurious.































































































