View this home virtually
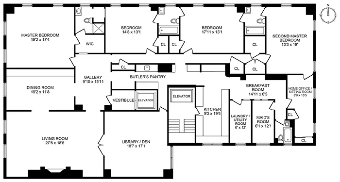
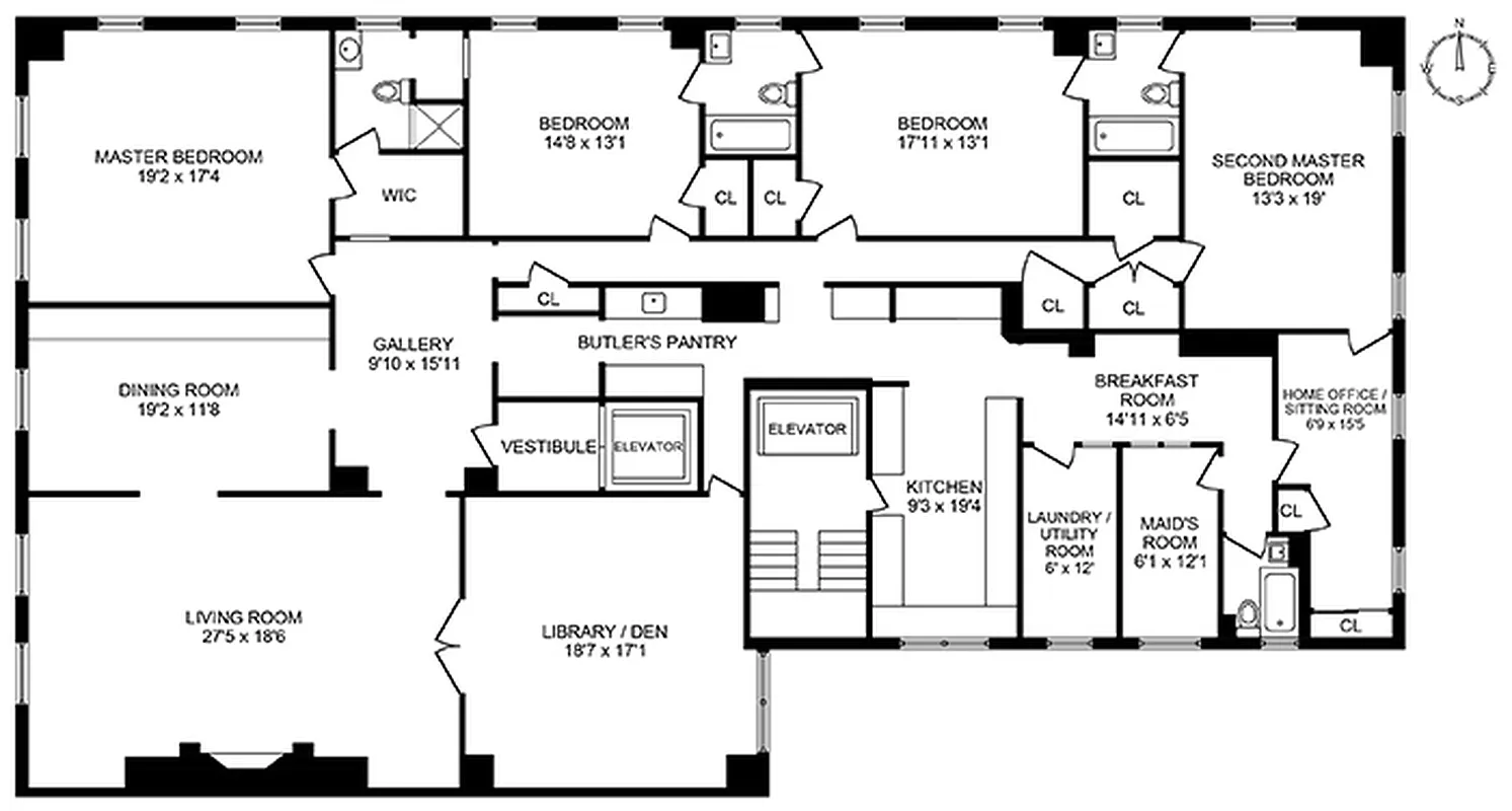
3,800 ft²
$2,631 per ft²
11 rooms
4 beds
4 baths
Condo
- Lenox Hill
Resale
recorded sale
Sold on 10/16/2020
Verified by closing records
Last listed for $10,975,000
Seller's agent
This home has been saved by 121 users.
Listing by Brown Harris Stevens, Real Estate Principal Office, 445 Park Avenue, New York, NY 10022
Common charges
$7,985/mo
Estimated payment
$68,930/mo
Legal disclaimerAll calculations are estimates provided by StreetEasy for informational purposes only. Actual amounts or financing terms may vary. Please contact your mortgage provider for specifics.Taxes
$4,243/mo
Tax abatement
No info
About
Seller’s agent
Buyer’s agent
description
PRIME FIFTH AVENUE FULL-FLOOR PREWAR CONDO WITH DIRECT PARK VIEWS!
First offering of a truly majestic, 11-room, 4-bedroom prewar residence in a top, full-service condominium, with all major rooms directly overlooking Central Park.
The Fifth Floor at 817 Fifth Avenue retains all the elegance and perfection of its original classic prewar layout, offering a flawless flow of entertaining and living space.
Policies
Pets allowed
Home features
Washer/dryer
Building amenities
Services and facilities
Concierge
Doorman
Full-time
Elevator
Laundry in building
Storage space
Wellness and recreation
No info on wellness and recreation
Shared outdoor space
No info on shared outdoor space
About the building
817 5th Avenue
817 5th Avenue, New York, NY 10065
16 units
14 stories
1925 built
For sale
0 available units for saleFor rent
0 available units for rentDocuments and permits
View documents and permitsProperty history
- Price Change: ↓ $1,525,000 (-12.2%) on 7/7/20
- Days on market: 420 daysThis is the number of days the listing has been on StreetEasy.
| Date | Price | Event |
|---|---|---|
1/12/2023 | $10,950,000 | |
11/22/2022 | $11,995,000 | |
10/4/2022 | $11,995,000 | Price decreased by 4% |
9/8/2022 | $12,500,000 | |
10/16/2020 | $9,999,000 | Sold by Brown Harris Stevens |
Past listing photos
Sign in to take a closer look at how this home compares to similar homes.
Explore Lenox Hill
Transit
| Location | Distance |
|---|---|
NRat 59th St | 0.12 miles |
FQat Lexington Av/63rd St | 0.26 miles |
NRW456at Lexington Av/59th St | 0.3 miles |
Fat 57th St | 0.33 miles |
6at 68th St–Hunter College | 0.36 miles |




































































































































