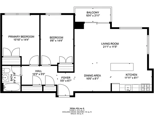
978 ft²
$419 per ft²
4 rooms
2 beds
1 bath
Condo
- Melrose
Resale
recorded sale
Sold on 12/1/2025
Verified by closing records
Last listed for $400,000
Seller's agent
This home has been saved by 4 users.
Listing by EXP Realty NYC, Real Estate Principal Office, 777 Westchester Avenue, White Plains, NY 10604
Common charges
$582/mo
Estimated payment
$2,600/mo
Legal disclaimerAll calculations are estimates provided by StreetEasy for informational purposes only. Actual amounts or financing terms may vary. Please contact your mortgage provider for specifics.Taxes
$14/mo
Tax abatement
421a expires in 2034
About
Seller’s agent
description
Modern 2-bedroom, 1-bath condo located in The Aurora, one of the most sought-after mid-rise buildings in the Bronx. This move-in ready unit features hardwood floors throughout, a spacious open-concept living and dining area, and a private balcony perfect for morning coffee. The kitchen offers generous cabinet and counter space, while both bedrooms are well-sized with ample closet space.
Policies
Sorry, policy info isn’t available right now. Check back later.
Home features
No info on home features
Building amenities
No info on building amenities
About the building
837 Washington Avenue
837 Washington Avenue, Bronx, NY 10451
92 units
8 stories
2008 built
For sale
3 available units for saleFor rent
0 available units for rentDocuments and permits
View documents and permitsProperty history
- Price Change: No changes
- Days on market: 26 daysThis is the number of days the listing has been on StreetEasy.
| Date | Price | Event |
|---|---|---|
12/1/2025 | $410,000 | Sold by EXP Realty NYC |
10/6/2025 | $400,000 | In contract |
9/10/2025 | $400,000 | Listed by EXP Realty NYC |
12/31/2008 | $263,000 |
Past listing photos
Sign in to take a closer look at how this home compares to similar homes.
Explore Melrose
Transit
| Location | Distance |
|---|---|
25at Jackson Av | 0.46 miles |
25at 3rd Av–149th St | 0.52 miles |
25at Prospect Av | 0.56 miles |
BD4at Yankee Stadium–161st St | 0.72 miles |
25at Intervale Av | 0.79 miles |





























































































































































































