$3,900
For Rent
Base rent only. For total monthly price and additional fees, see .
Rented 10/28/2022
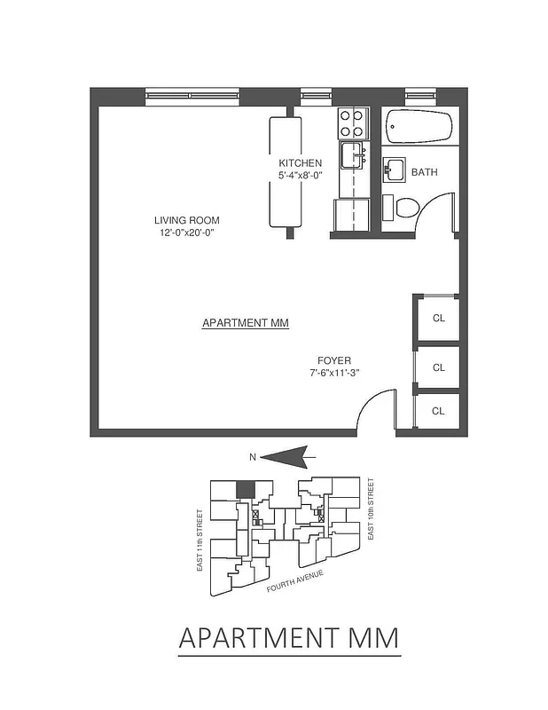
- ft²
2 rooms
Studio
1 bath
Rental unit
- East Village
Under NYC law, you can't be charged a broker fee if you didn't hire a broker.
Listed By
This home has been saved by 16 users.
Listing by Compass, Corporate Broker, 110 5th Avenue, New York, NY 10011
Unavailable
Rented on 10/28/2022
Days on market
11 days
Last price change
↓ $100 (-2.5%) on 10/18/22
About
-Spacious Studios, One Bedrooms, and Two Bedrooms with a variety of different layouts…
– 24 Hour Door Staff
– Resident Superintendent with Facility Staff
– Fitness Room with Peloton Bikes
– Laundry Room in Basement
– Shared Courtyard Garden
– Attached Parking Garage with Bicycle Storage
– Kitchens equipped with Stovetop & Oven, Fridge, Microwave, and Dishwasher (Stainless Steel Appliances in Select...
Policies
Pets allowed
Home features
Dishwasher
Building amenities
Services and facilities
Doorman
Elevator
Laundry in building
Live-in super
Parking
Storage space
Wellness and recreation
Gym
Shared outdoor space
Courtyard
Garden
About the building
85 4th Avenue
85 4th Avenue, New York, NY 10003
159 units
7 stories
1959 built
Property history
Prices shown are base rent only. For total monthly price and additional fees, see .
| Date | Base rent | Event |
|---|---|---|
10/28/2022 | $3,900 | Rented by Compass |
10/18/2022 | $3,900 | Price decreased by 3% |
10/18/2022 | $4,000 | Listed by Compass |
10/11/2022 | $4,000 | Rented by Compass |
10/4/2022 | $4,000 | Temporarily off market |
Past listing photos
Sign in to take a closer look at how this home compares to similar homes.
Explore East Village
Transit
| Location | Distance |
|---|---|
6at Astor Place | 0.11 miles |
RWat 8th St–NYU | 0.14 miles |
LNQRW456at 14th St–Union Square | 0.19 miles |
Lat 3rd Av | 0.19 miles |
Lat 1st Av | 0.38 miles |
About East Village
Rental prices shown are base rent before any fees. Visit listings for cost and fees breakdown.
SalesMedian asking price
Studio
$499K
RentalsMedian asking base rent
Studio
$3,095
Known and loved for being the birthplace of punk rock, the East Village is known for its vibrant restaurants and cocktail dens. During the day, however, the neighborhood slows down and has a tranquil feel. Meander down a leafy side street, and you'll happen upon plenty of prewar buildings and rusting fire escapes, which lend the East Village its old-fashioned charm.
Learn more about East VillageSimilar homes
Prices shown are base rent only and don't include any fees. Visit each listing to see a complete cost breakdown.
Similar Homes looks at ad spend and other factors like location, price, and number of beds and baths.

















































































