View this home virtually
$4,950
For Rent
Base rent only. For total monthly price and additional fees, see .
Rented 11/16/2020
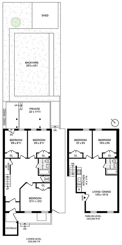
1,600 ft²
$37 per ft²
7 rooms
5 beds
2 baths
Two-family home
- Fort Greene
Under NYC law, you can't be charged a broker fee if you didn't hire a broker.
Listed By
This home has been saved by 56 users.
Listing by Corcoran, Limited Liability Broker, 1413 Fulton Street, Brooklyn, NY 11216
Unavailable
Rented on 11/16/2020
Days on market
53 days
Last price change
↓ $500 (-9.2%) on 10/21/20
About
5 bedroom, 2 bathroom garden duplex in Fort Greene. Situated on the first two floors of a 22.5 ft wide townhome and spread out over 1600 square feat, this home faces East and West for great light all day long and features:
Hardwood floors
Brand new renovation
High Ceilings
Two full bathrooms
Open kitchen and living room layout
Full size stainless steel appliances including dishwasher and vented hood
Double...
Policies
Sorry, policy info isn’t available right now. Check back later.
Home features
Central air
Dishwasher
Hardwood floors
Private outdoor space
Garden
Washer/dryer
Building amenities
No info on building amenities
About the building
85 Clermont Avenue
85 Clermont Avenue, Brooklyn, NY 11205
2 units
2 stories
1899 built
Property history
Prices shown are base rent only. For total monthly price and additional fees, see .
| Date | Base rent | Event |
|---|---|---|
11/16/2020 | $4,950 | Rented by Corcoran |
10/21/2020 | $4,950 | Price decreased by 9% |
9/24/2020 | $5,450 | Price decreased by 2% |
9/24/2020 | $5,540 | Listed by Corcoran |
Past listing photos
Sign in to take a closer look at how this home compares to similar homes.
Explore Fort Greene
Transit
| Location | Distance |
|---|---|
Gat Clinton–Washington Avs | 0.52 miles |
Gat Fulton St | 0.62 miles |
Cat Lafayette Av | 0.62 miles |
BQRat DeKalb Av | 0.63 miles |
2345at Nevins St | 0.68 miles |
About Fort Greene
Rental prices shown are base rent before any fees. Visit listings for cost and fees breakdown.
SalesMedian asking price
5 beds
$3.55M
RentalsMedian asking base rent
5 beds
$25,000
With bustling flea markets, a world-renowned performance space, trendy boutiques, fabulous restaurants, and a rich literary and artistic tradition, Fort Greene attracts residents looking for a slower pace of living without sacrificing the vibrancy of urban life. Historic brownstones and row houses make up most of the available real estate, and it's common to find neighbors catching up on their stoops. Intense Brooklyn pride is in evidence on the main drag of Fulton Street, where a Notorious B.I.G. quote is painted on the side of a prominent building - "Spread love it's the Brooklyn way."
Learn more about Fort GreeneSimilar homes
Prices shown are base rent only and don't include any fees. Visit each listing to see a complete cost breakdown.
Similar Homes looks at ad spend and other factors like location, price, and number of beds and baths.























































































































