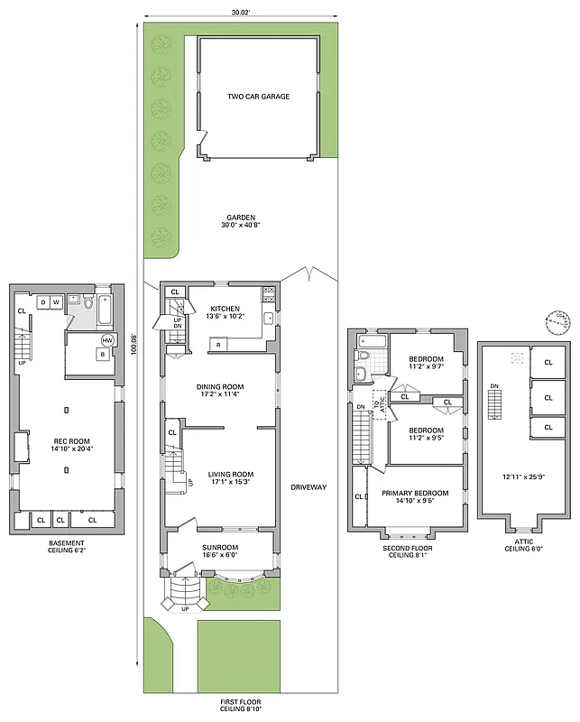
1,834 ft²
$477 per ft²
7 rooms
3 beds
2 baths
House
- Kew Gardens
Resale
reported sale
Sold on 1/16/2026
Not yet verified by closing records
Seller's agent
This home has been saved by 14 users.
Listing by Compass, Corporate Broker, 110 5th Avenue, New York, NY 10011
Listing updated in the last 2 days
Common charges
Not applicable
Estimated payment
$5,090/mo
Legal disclaimerAll calculations are estimates provided by StreetEasy for informational purposes only. Actual amounts or financing terms may vary. Please contact your mortgage provider for specifics.Taxes
$550/mo
Tax abatement
No info
About
Seller’s agent
description
Charming 1930's Kew Gardens Single Family Colonial w/Original Details
Rare to market, fully detached single family 3 Bed, 2 Bath with attic and full finished basement measures 1,834 SF interior +342 SF attic totaling a gross 2,176 SF interior.* The 30x100 lot offers a private drive that can accommodate 2 cars plus 2 car garage and garden.
Policies
Sorry, policy info isn’t available right now. Check back later.
Home features
Hardwood floors
Private outdoor space
Garden
Washer/dryer
Building amenities
Services and facilities
Laundry in building
Parking
Garage
Wellness and recreation
No info on wellness and recreation
Shared outdoor space
No info on shared outdoor space
About the building
85-15 123rd Street
85-15 123rd Street, Kew Gardens, NY 11415
1 unit
2 stories
1930 built
Property history
- Price Change: No changes
- Days on market: 8 daysThis is the number of days the listing has been on StreetEasy.
| Date | Price | Event |
|---|---|---|
1/16/2026 | $875,000 | Sold by Compass |
10/24/2025 | $875,000 | In contract |
10/16/2025 | $875,000 | Temporarily off market |
10/8/2025 | $875,000 | Listed by Compass |
Past listing photos
Sign in to take a closer look at how this home compares to similar homes.
Explore Kew Gardens
Transit
| Location | Distance |
|---|---|
JZat 121st St | 0.17 miles |
LIRRat Kew Gardens | 0.47 miles |
Fat Briarwood–Van Wyck Blvd | 0.53 miles |
Eat Jamaica–Van Wyck | 0.57 miles |
Jat 111th St | 0.64 miles |











































































































































































