- ft²
4 rooms
2 beds
2 baths
Co-op
- Concourse
reported sale
Sold on 3/11/2017
Not yet verified by closing records
Seller's agent
This home has been saved by 51 users.
Listing by Halstead Real Estate, 2169 Frederick Douglas Boulevard, New York, NY 10026 | MLS #: 15425478
Maintenance fees
$1,104/mo
Estimated payment
$3,225/mo
Taxes
Included in maintenance fees
Tax abatement
No info
About
Sellerâs agent
description
Contract Signed. Hollywood on the Concourse w Sunsets
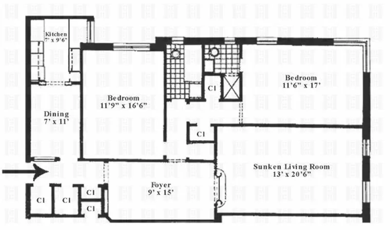
So rarely available , this classic art deco example of the Bronx's Golden Age beckons the true devotee of the architectural style for which the borough is lauded. Your eye travels from the formal, elegant & ample dining foyer down the steps to the sunken living room's pair of south facing windows a stunning 42.
Policies
Sorry, policy info isnât available right now. Check back later.
Home features
No info on home features
Building amenities
Services and facilities
Doorman
Part-time
Elevator
Live-in super
Wellness and recreation
No info on wellness and recreation
Shared outdoor space
No info on shared outdoor space
About the building
860 Grand Concourse
860 Grand Concourse, Bronx, NY 10451
111 units
7 stories
1937 built
For sale
5 available units for saleFor rent
1 available units for rentDocuments and permits
View documents and permitsProperty history
- Price Change: â $20,000 (+5.3%) on 12/8/16
- Days on market: 55 days
| Date | Price | Event |
|---|---|---|
4/21/2017 | $385,000 | |
11/16/2017 | $400,000 | Sold by Halstead Real Estate |
3/11/2017 | $400,000 | No longer available |
12/8/2016 | $400,000 | Price increased by 5% |
10/26/2016 | $380,000 | In contract |
Past listing photos
Sign in to take a closer look at how this home compares to similar homes.
Explore Concourse
Transit
| Location | Distance |
|---|---|
BD4at Yankee Stadiumâ161st St | 0.13 miles |
BDat 167th St | 0.51 miles |
245at 149th StâGrand Concourse | 0.59 miles |
4at 167th St | 0.66 miles |
25at 3rd Avâ149th St | 0.72 miles |





























































































































