$3,750
For Rent
Base rent only. For total monthly price and additional fees, see .
Rented 8/4/2025
- ft²
3 rooms
1 bed
1 bath
Rental unit
- Lower East Side
Under NYC law, you can't be charged a broker fee if you didn't hire a broker.
Listed By
This home has been saved by 18 users.
Listing by Jade Stone Real Estate Consulting, Corporate Broker, 1460 Broadway, New York, NY 10036
Unavailable
Rented on 8/4/2025
Days on market
18 days
Last price change
No changes
About
Available from 09/01/2025 & a Great Deal for this LARGE Apt!
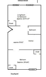
-Shares are welcome. (Perfect layout for shares. pls. refer to floorplan)
-No pets (with exception of service animals)
Applicable Fee paid by the tenant:
-$10 credit check per applicant.
-First month rent & 1-month Security deposit to be collected at lease signing.
Come home to this large, beautiful, bright 1BR/Conv.
Policies
Sorry, policy info isn’t available right now. Check back later.
Home features
Central air
Hardwood floors
View
City
Building amenities
No info on building amenities
About the building
87 Clinton Street
87 Clinton Street, New York, NY 10002
13 units
5 stories
1920 built
Property history
Prices shown are base rent only. For total monthly price and additional fees, see .
| Date | Base rent | Event |
|---|---|---|
8/4/2025 | $3,750 | Rented by Jade Stone Real Estate Consulting |
7/27/2025 | $3,750 | In contract |
7/9/2025 | $3,750 | Listed by Jade Stone Real Estate Consulting |
2/8/2023 | $3,200 | |
1/29/2023 | $3,200 |
Past listing photos
Sign in to take a closer look at how this home compares to similar homes.
Explore Lower East Side
Transit
| Location | Distance |
|---|---|
FJMZat Essex St | under 500 feet |
FJMZat Delancey St | 0.13 miles |
Fat 2nd Av | 0.33 miles |
Fat East Broadway | 0.38 miles |
BDat Grand St | 0.42 miles |
About Lower East Side
Rental prices shown are base rent before any fees. Visit listings for cost and fees breakdown.
SalesMedian asking price
1 bed
$850K
RentalsMedian asking base rent
1 bed
$3,895
The narrow streets of the Lower East Side were once lined with tenement buildings, shirt factories and bialy shops. Although a few vestiges of the neighborhood's immigrant heritage remain, many of the tenement buildings have been updated and now offer relatively affordable rental options to young New Yorkers looking to live right in the thick of Downtown Manhattan.
There's no getting around it - the LES is a major nightlife destination. In this part of the city, last call is late and often negotiable -- especially if you're a regular. On weekend nights, the neighborhood is packed as crowds overflow from the local bars and take to the streets in search of a late-night falafel fix before heading onto the next party. During the day, the neighborhood chills out as residents nurse their hangovers or head to work slowly after stopping at one of the area's many trendy juice bars or coffee shops.
Similar homes
Prices shown are base rent only and don't include any fees. Visit each listing to see a complete cost breakdown.
Similar Homes looks at ad spend and other factors like location, price, and number of beds and baths.





































































