$6,500
For Rent
Base rent only. For total monthly price and additional fees, see .
Rented 8/19/2020
- ft²
7 rooms
3 beds
3 baths
Two-family home
- Vinegar Hill
Under NYC law, you can't be charged a broker fee if you didn't hire a broker.
Listed By
This home has been saved by 60 users.
Listing by Corcoran, Limited Liability Broker, 794 Union Street, Brooklyn, NY 11215
Unavailable
Rented on 8/19/2020
Days on market
15 days
Last price change
No changes
About
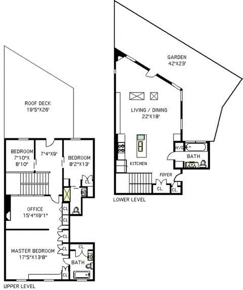
3+ bedrooms, 3 baths. 2 private outdoor spaces. 2 floors. URBAN OASIS.
Located on a quiet cobble stone street in Vinegar Hill, this 3 bedroom, 3 bath loft-like duplex is your in town retreat. Skylights let in sunlight to the open plan dining & living room while glass walls allow for more sun to stream from above through the center stair. Split unit AC’s keep you cool while radiant heat keeps you warm.
Policies
Sorry, policy info isn’t available right now. Check back later.
Home features
Central air
Dishwasher
Fireplace
Hardwood floors
Private outdoor space
Garden, Roof deck
View
Garden
Washer/dryer
Building amenities
No info on building amenities
About the building
87 Hudson Avenue
87 Hudson Avenue, Brooklyn, NY 11201
2 units
4 stories
1925 built
For rent
0 available units for rentProperty history
Prices shown are base rent only. For total monthly price and additional fees, see .
| Date | Base rent | Event |
|---|---|---|
8/22/2020 | $6,500 | Rented by Corcoran |
8/19/2020 | $6,500 | Temporarily off market |
8/4/2020 | $6,500 | Listed by Corcoran |
2/11/2020 | $7,000 | |
11/26/2019 | $7,000 |
Past listing photos
Sign in to take a closer look at how this home compares to similar homes.
Explore Vinegar Hill
Transit
| Location | Distance |
|---|---|
Fat York St | 0.3 miles |
ACat High St | 0.43 miles |
ACFRat Jay St–MetroTech | 0.68 miles |
23at Clark St | 0.71 miles |
Ferryat Fulton Ferry Landing | 0.73 miles |
About Vinegar Hill
Rental prices shown are base rent before any fees. Visit listings for cost and fees breakdown.
SalesMedian asking price
3 beds
$3.5M
RentalsMedian asking base rent
3 beds
$6,850
Bordered by a ConEdison substation, the Brooklyn Navy Yard, and the BQE, Vinegar Hill is a sleepy residential hamlet surrounded by imposing urban infrastructure. The combination of its cobblestone streets, wood frame houses, and lack of commercial activity gives the place a distinct small-town vibe. And by anyone's standards, the neighborhood is tiny — the 2012 U.S. Census listed less than 600 residents! Given its size and geographic isolation, it's no wonder Vinegar Hill has flown under the real estate radar for so long. But with its rustic appeal and proximity to the booming Dumbo, Vinegar Hill may well be one of New York City's next hottest neighborhoods. The lack of conveniences (read: no grocery stores and long walks to the subway), however, are still a deterrent for many potential residents and keep the neighborhood small and quiet.
Learn more about Vinegar HillSimilar homes
Prices shown are base rent only and don't include any fees. Visit each listing to see a complete cost breakdown.
Similar Homes looks at ad spend and other factors like location, price, and number of beds and baths.
















































































































