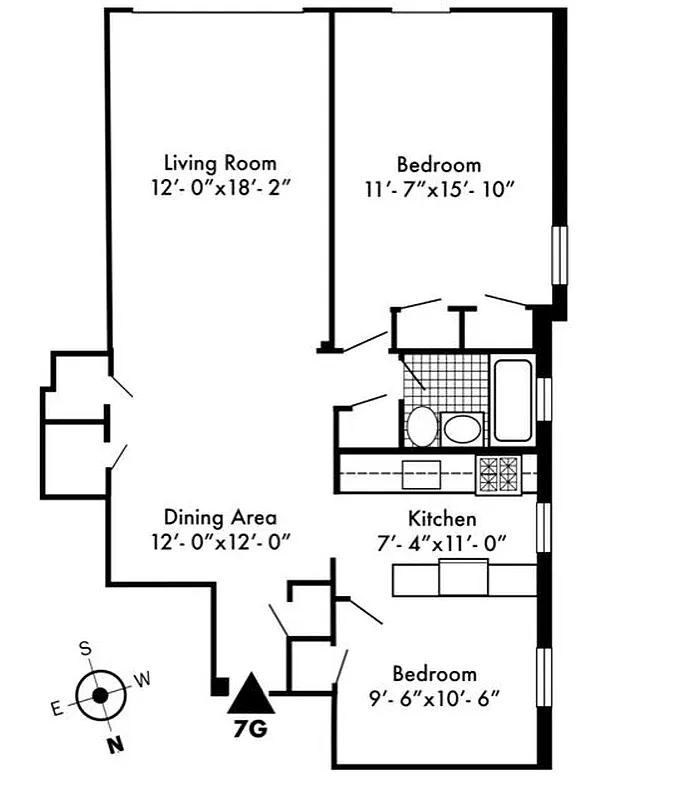
925 ft²
$308 per ft²
4 rooms
2 beds
1 bath
Co-op
- Kingsbridge Heights
Resale
recorded sale
Sold on 10/15/2024
Verified by closing records
Last listed for $289,000
Seller's agents
This home has been saved by 16 users.
Listing by Brown Harris Stevens, Real Estate Principal Office, 3531 Johnson Avenue, Riverdale, NY 10463
Maintenance fees
$869/mo
Estimated payment
$2,598/mo
Taxes
Included in maintenance fees
Tax abatement
No info
About
Seller’s agent
Buyer’s agent
description
Low Maintenance, Top Floor, SPONSOR UNIT with NO BOARD APPROVAL! This large, airy, renovated 2 Bedroom 1 Bath has a fully equipped windowed galley kitchen with new fixtures, finishes, and stainless-steel appliances. Under mount stainless steel sink, soft close cabinetry, quartz countertops, subway tile backsplash, and lots of cabinet storage. The windowed bathroom has an elegant storage vanity and ceramic floor tile.
Policies
Sorry, policy info isn’t available right now. Check back later.
Home features
Dishwasher
Hardwood floors
Building amenities
Services and facilities
Live-in super
Parking
Garage
Wellness and recreation
No info on wellness and recreation
Shared outdoor space
No info on shared outdoor space
About the building
91 Van Cortlandt Avenue West
91 Van Cortlandt Avenue West, Bronx, NY 10463
50 units
7 stories
1963 built
For sale
0 available units for saleFor rent
0 available units for rentDocuments and permits
View documents and permitsProperty history
- Price Change: No changes
- Days on market: 24 days
| Date | Price | Event |
|---|---|---|
10/15/2024 | $285,000 | Sold by Brown Harris Stevens |
8/26/2024 | $289,000 | In contract |
8/2/2024 | $289,000 | Listed by Brown Harris Stevens |
Past listing photos
Sign in to take a closer look at how this home compares to similar homes.
Explore Kingsbridge Heights
Transit
| Location | Distance |
|---|---|
1at 238th St | 0.43 miles |
4at Mosholu Parkway | 0.49 miles |
1at Van Cortlandt Park–242nd St | 0.5 miles |
1at 231st St | 0.68 miles |
4at Bedford Park Blvd–Lehman College | 0.71 miles |


































































































