View this home virtually
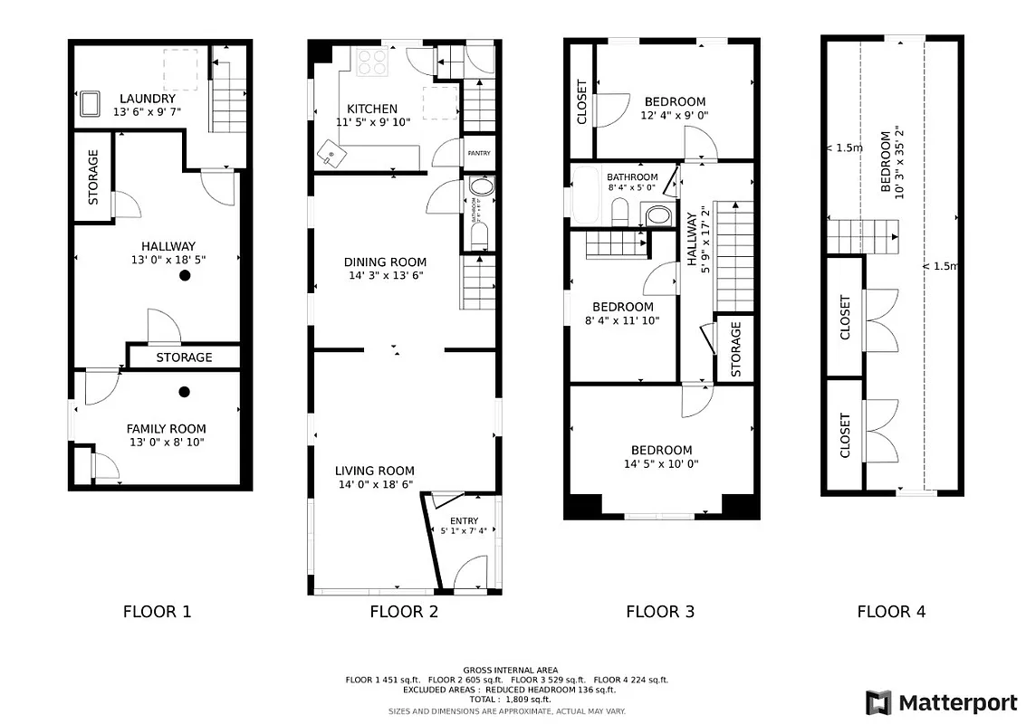
1,250 ft²
$648 per ft²
9 rooms
3 beds
2.5 baths
House
- Richmond Hill
Resale
recorded sale
Sold on 3/28/2025
Verified by closing records
Last listed for $799,000
Seller's agent
This home has been saved by 4 users.
Listing by RE MAX Team, Real Estate Principal Office, 36-11 33rd Street, Long Island City, NY 11106
Common charges
Not applicable
Estimated payment
$4,316/mo
Legal disclaimerAll calculations are estimates provided by StreetEasy for informational purposes only. Actual amounts or financing terms may vary. Please contact your mortgage provider for specifics.Taxes
$414/mo
Tax abatement
No info
About
Seller’s agent
description
Welcome to 94-22 110th Street, a beautifully updated, fully detached single-family home nestled in the heart of Richmond Hill South, NY! This move-in-ready home offers the perfect blend of modern convenience and timeless charm.
Step inside to a bright and inviting foyer, leading to a cozy den, a spacious living room, and a formal dining area—perfect for entertaining.
Policies
Sorry, policy info isn’t available right now. Check back later.
Home features
Dishwasher
Hardwood floors
View
City
Washer/dryer
Building amenities
Services and facilities
Laundry in building
Parking
Garage
Wellness and recreation
No info on wellness and recreation
Shared outdoor space
Courtyard
About the building
94-22 110th Street
94-22 110th Street, South Richmond Hill, NY 11419
1 unit
2 stories
1920 built
For sale
0 available units for saleFor rent
0 available units for rentDocuments and permits
View documents and permitsProperty history
- Price Change: No changes
- Days on market: 35 daysThis is the number of days the listing has been on StreetEasy.
| Date | Price | Event |
|---|---|---|
3/28/2025 | $810,000 | Sold by RE MAX Team |
3/20/2025 | $799,000 | In contract |
2/13/2025 | $799,000 | Listed by RE MAX Team |
Past listing photos
Sign in to take a closer look at how this home compares to similar homes.
Explore Richmond Hill
Transit
| Location | Distance |
|---|---|
Jat 111th St | 0.4 miles |
JZat 104th St–102nd St | 0.48 miles |
Aat 111th St–Greenwood Av | 0.5 miles |
Aat Lefferts Blvd | 0.58 miles |
Aat 104th St–Oxford Av | 0.62 miles |












































































































































































